大理石质感的墙面砖,洗手盆上方挂一面圆形的背光镜,整体空间显得温馨而明亮 。
餐厅装修的时候,有人会考虑餐厅风水的影响,餐厅是一家人团聚的地方,跟家庭的财富有着非常大的关系,所以在进行装修的时候应该采用亮色的装饰和明亮的照明,这样不仅心情明快,还能映照出家庭的明亮和财源滚滚,装修得当也可能为家庭带来意想不到的好运 。

文章插图
餐厅与客厅整体风格与家居格调保持一致,和谐统一的空间风格,提升了空间的视觉与设计感 。

文章插图
现代中式的餐桌椅搭配,顶上一组气泡造型的吊灯,使得用餐氛围更加优雅明亮 。

文章插图
精致华丽的餐具布置,让用餐更加端庄有仪式感 。
书房需要安静与沉稳,才能够让人可以平心静气的学习工作,在书房装修设计时,还需要与整体的装修风格相互搭配,才能打造更为舒适惬意的书房空间 。

文章插图
书房放置了一架古筝,飘窗垫着舒适的坐垫,整体空间充满了中式的优雅与设计布置 。
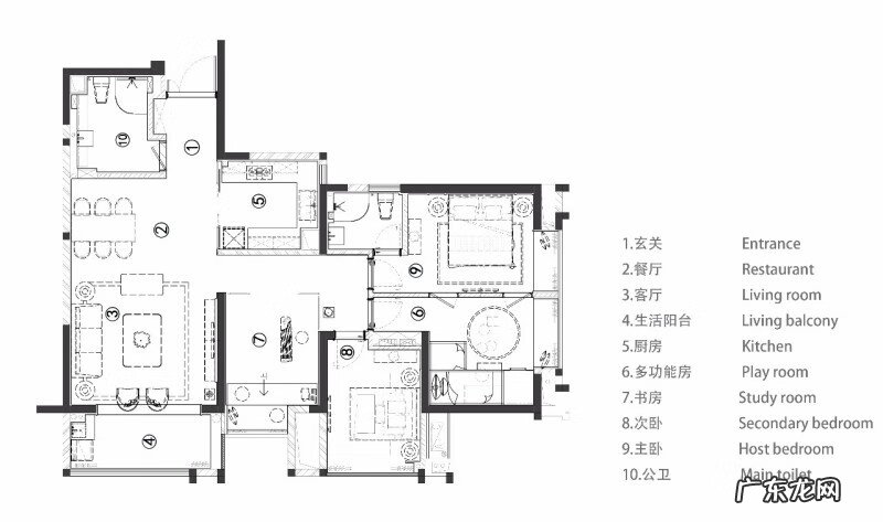
以下就是本套中电颐和家园小区120平米三居室房子的户型图 。

文章插图
中电颐和府邸的平面方案布置图118㎡现代中式,淡雅闲适轻中式,稳重端庄高档次
【富阳秀水山庄怎么样 颐和山庄 风水】关于装修小窍门,小编就为大家介绍到这里了,方式装修120平米的房子只用14万,真的算是太便宜了,大家在装修的时候也一定要在价格上算计到位 。不要花了冤枉钱 。
- 承德避暑山庄旅游形象口号
- 富阳龙门古镇的美景 富阳 风水
- 富阳人好不好 富阳 风水
- 烟台碧桂园凤凰山庄风水 碧桂园风水好吗
- 富川风雨桥图片 富川秀水状元村风水
- 山顶建房的风水要求 避暑山庄的风水
- 蝶泉山庄风水不好 国会山庄 美国
- 铁山坪环境最好的山庄 铁山坪的别墅
特别声明:本站内容均来自网友提供或互联网,仅供参考,请勿用于商业和其他非法用途。如果侵犯了您的权益请与我们联系,我们将在24小时内删除。
