地理之道,山水而已 。整个小区在规划时,需要好山活水的大格局 。室内布局,方位格局,均讲究易经八卦,不同命理的人应处不同方位,藏风聚气,此处指“阴阳气” 。
风水家相地重水,住宅选址于河曲则以水流三面环绕,缠护为吉 。水穿绕山,山置于水 。以为“金城环抱” 。不论景观审美还是自然钟灵毓秀之气,山水的重要性不言而喻 。
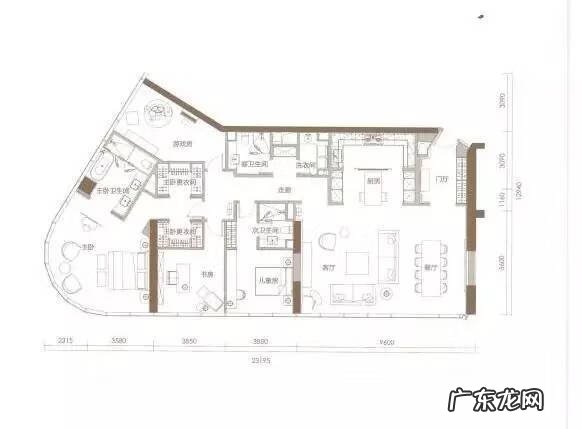
最近相中的4200w大平层,除了玄关处正对歪墙,卧室圆形如身躺坟地,沙发背后无实墙相倚,还背着餐厅,行为心理学上确实说不过去,本来琢磨着生活习惯可以改,但是风水大师给我算上那么一算,让我彻底断了念头 。

文章插图
梵悦·万国府 四室两厅三卫 290㎡户型图
外形上看,像只袜子,也有风水大师说像带口未封实的钱袋子 。
确实如此,这个豪宅的平层户型整体来说不规则,户型不正钱财易空 。东南方是太岁方,平常都用于置放财神位,不要在太岁头上动土 。该户型五鬼位太丰满,适合女人当家,不利于男主人 。女人住的话,破解办法就是改造一下洗衣间,位置改成其他用途,客厅布局稍做处理 。看到生气入门,门开在东北为艮卦八运旺向,2024就换九运后为离卦 。这个格局财源广进,但是不处理就是男命短寿 。
如果女人当家可以考虑,毕竟这套4000万+的价位非常人可以承担 。

文章插图
风水方位九宫飞星图(来源网络)
传统的风水观念来讲,“左青龙,右白虎”,因此一定要看看大门左右两边的情况 。右侧为白虎方位,最好不要突出或者摆放什么东西,风水书中讲白虎探头必伤人,家里人容易出事或者经常生病 。另外住宅门大小要适中,过大主泄气,不聚气,不符合藏风聚气的风水原则 。太小又影响聚气的效果 。
项目紫辰院位于西四环中路112号,占地11.1万平方米,总建面14.6万平方米,均价10万平左右 。身处于五棵松板块,西3.5环,35%的绿化率 。涵盖独栋别墅、联排别墅、平层大宅及高端商业等多重业态 。周边临近商圈有金融街商圈、中关村商圈、公主坟商圈、丽泽金融商务区等 。千亩公园群与60000平米私家园囿连荫1300亩国园大境,blabla......
我们来看看下面现在在售的紫辰院“世家邸”266平米的四室两厅三卫一厨的户型 。

文章插图
从户型图上看,玄关的设置摆放与同类产品的差异还有点大,不知道是原本在设计上的小心思还是误差,正东方向上的玄关似乎与大门有了点偏差,刚入门时会给人一种别扭的感觉 。从风水学上说,形煞和气煞两种煞气,形煞是指有形之物产生的煞气,即用肉眼能看到的事物对住宅产生的煞气,常见的形煞有反光煞、枪煞、镰刀煞等,气煞是指煞星飞临的方位,简单地说,就是住宅与房主相冲形成的煞气 。
它们虽非怪力乱神的东西,却会使人感觉压抑不舒服,久居于这样的住宅,会影响家人的健康 。设立玄关可以有效地化解煞气 。玄关的设置可以促使从大门进入的煞气转向,将从凶方流入的煞气转而从吉方而入,化庚气为祥和,符合风水的趋吉避凶之道 。
设置玄关可以防止泄水 。
风水建筑里有“喜回旋、忌直冲”的说法,所以古人在建造房屋时,向来保守回旋往复的建筑理念 。设置玄关可改变气的流动路线,让从大门而入的旺气与财气在室内多做停留,尽可能地让室内各处沾染旺气与财气 。若大门正对窗户或阳台,则旺气和财气从大门流入,转眼间就会从窗户或阳台流出,这是泄水之局,家中难以攒住钱财 。
- 临朐有会看风水的吗 有关临朐风水的传说
- 《菊花爆满山》为什么是首禁歌
- 白葡萄酒有哪些品种 白葡萄酒的功效和作用
- 道歉信简短 道歉短信给客户
- 我有一个梦想演讲稿开头 我有一个梦想演讲稿800字
- 人际交往方面存有什么样的问题需要注意
- 陶米水有哪些妙用
- 异地恋感情越来越淡的表现 一般异地多久感情会淡
- 辅酶q10没开瓶但是过期了还能吃吗 q10过期了2年还能有什么用
- 阿兹夫定片吃了有后遗症吗 阿兹夫定片有不良反应吗
特别声明:本站内容均来自网友提供或互联网,仅供参考,请勿用于商业和其他非法用途。如果侵犯了您的权益请与我们联系,我们将在24小时内删除。
