
文章图片

文章图片

文章图片

文章图片

文章图片

文章图片

文章图片

文章图片

文章图片

文章图片

现在很多年轻人都向往大城市的生活 , 能够在大城市留有一份体面的工作 , 拥有一套属于自己的房子 , 想想就是一件很幸福的事情 。 很多年轻人在大城市里面打拼为的就是能够有一套属于自己和家人的新房!
95后小夫妻有多大胆?5年的积蓄 , 就只买了一套30平的老房子!
可能很多朋友都觉得年轻人一定会购买一套美观又能够升值的新房子 , 但今天这对95后小夫妻却是十分的大胆 , 他们花费了5年多的积蓄 , 在上海买了一套30平的老房子!就连父母都跳出来反对!
房屋户型:一室
房屋面积:30平方米
装修预算:20万
所在城市:上海
设计师:李文伟
主要建材:大理石材、烤漆玻璃、天然木皮、进口耐磨地板、特殊磁漆
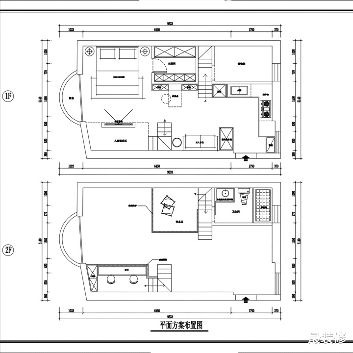
【户型图】
可能很多朋友觉得既然他们愿意用自己5年多的积蓄购买到老房子 , 那么这一套老房子一定有很独特的地方吧 , 其实这个房子就是一个很简单的小一室户型 , 没有任何的亮点 。
其实当设计师看到这个房子的时候 , 也是十分的惊讶 , 没有任何的亮点 , 就是一个普通的小一室 , 我也实在想不明白这对小夫妻坚持买这里的原因 。
不过想一想也能够理解他们了 , 在喧闹的城市当中拥有一个安静的小房子 , 似乎也是一个不错的选择 。
【95后小夫妻有多大胆?5年的积蓄,就只买了一套30平的老房子!】
【原始的房屋】
这个房子不仅使用面积比较小 , 而且这个房子的年代也比较久 , 房子内部的装修几乎都是比较老式的木质结构 , 然后打开家门的时候 , 就觉得这个房子结构实在是太差了 。
但好在户型结构比较规整 , 没有太多凹凸不平的地方 , 所以想要改造的话 , 还是比较容易的 , 经过和业主的沟通之后 , 设计师敲定了最后的改造方案 。
特别声明:本站内容均来自网友提供或互联网,仅供参考,请勿用于商业和其他非法用途。如果侵犯了您的权益请与我们联系,我们将在24小时内删除。
