今天在这美好时光里十分感激在这里能为你解答这个问题 , 让我带领你们一起走进这个问题 , 现在让我们一起探讨一下 。
解答
电视背景墙的设计主要还是取决于屋主的喜好需求 , 所以要以使用者为核心设计打造 , 每个人需求不同 , 每个家庭情况当然也不相同 。电视背景墙2.7的话不是太大 , 建议不要做太复杂的背景 , 复杂、豪华风格电视背景墙设计最好还是不要参与进去 。等时间一长 , 你最终还是会发现以简约、后现代、极简为主这样的电视背景墙最耐看 , 也是可以避免视觉疲劳的好设计 。下面是我们做过的一些实景案列 , 附上施工图 , 可以欣赏参考一下哦

文章插图
本案现代风设计 , 电视背景是用整体的胡桃木做为基调 , 嵌入的电视机 , 石材挑台 , 下侧使用了电子壁炉 。体现出电视背景的质感和品质 。

文章插图

文章插图
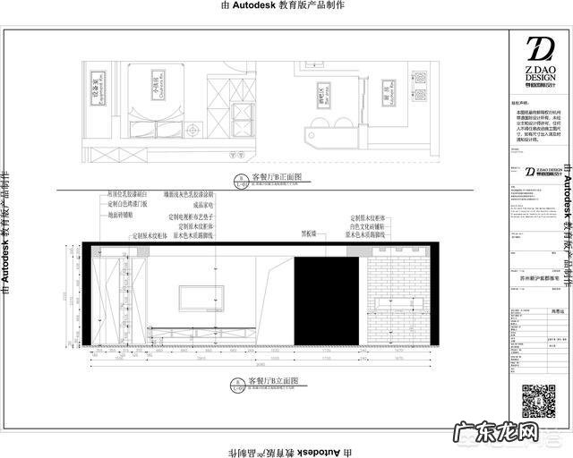
本案现代风 , 电视背景墙的设计没有用太多的材质造型 , 做了隐藏式电动造型柜 , 涂上白色艺术漆 。追求设计上的留白与质感 。

文章插图

文章插图

文章插图
本案为日式风 , 客厅墙面用了艺术漆 , 而且是可擦洗的 , 再也不担心孩子乱画了 , 孩子的天性还是要保持的 , 设计上也是必须要考虑的 , 阳台管道位置刚好设计柜子将其遮挡 , 而且更是美观了整体电视背景 , 背景墙的设计不要花销 , 就是简明舒适 。
- 我的情感问题应该怎么办?谢谢?
- 白细胞低的原因是什么?有什么危害?
- 红线图是怎么来的
- 适合放客厅的大盆绿植
- 关于植树节的名人名言 有关植树节名言
- 平凡而不平庸 平庸与快乐
- 春运最繁忙的线路 春运路线规划
- 别墅庭院最适合种什么样的草
- 家里的开关经常跳闸是什么原因?
- 婺源铺床习俗
特别声明:本站内容均来自网友提供或互联网,仅供参考,请勿用于商业和其他非法用途。如果侵犯了您的权益请与我们联系,我们将在24小时内删除。
