
文章插图
楼板与墙体的独立性 ? 吴嗣铭
项目位于粤西吴阳镇的农村,业主是建筑师的父母,他们希望在原宅基地上新建一个能容纳父母及兄弟两个家庭的自建房,同时需遵循农村风水及习俗,一个人神共居的家宅 。

文章插图
? 吴嗣铭

文章插图
? 吴嗣铭
平面略带古典对称,巨大的屋顶覆盖大部分的用地,其下是一个具有祭祀功能的半室内“明厅”,向传统当地民居“三间两廊”致敬 。

文章插图
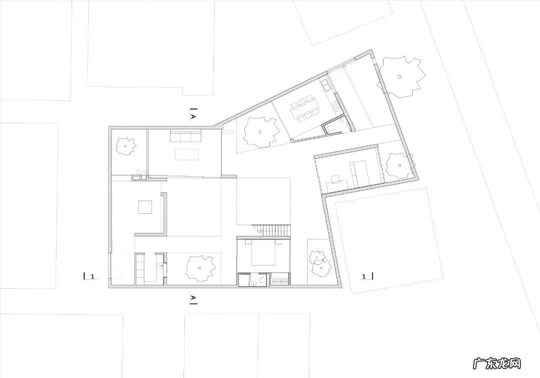
首层平面图

文章插图
大门入口 ? 吴嗣铭

文章插图
【民房风水 广东的农村房子】
对偶空间处理 ? 吴嗣铭
在这里供奉着神,先祖,流动的室内外空间构建一个人、神、先祖及自然严密的祭祀体系,内向庭院及高耸的厅,创造一种“庙宇”的神秘氛围,指向目不可及之处 。世俗的日常用房则分设于“明厅”两侧,以体现人对自然及神灵的敬畏 。

文章插图
明厅 ? 吴嗣铭

文章插图
人神共居-并置空间组织 ? 吴嗣铭

文章插图
明厅 ? 吴嗣铭

文章插图
明厅 ? 吴嗣铭
楼板与墙体在视觉上是独立分离的,在这内向的建筑空间里,分别产生水平和垂直的延伸感 。通过隐藏的排水系统,消除室内外的高差,室内外地面同一材质加强了空间的流动 。

文章插图
反挑梁 ? 吴嗣铭

文章插图
走廊 ? 吴嗣铭

文章插图
阴翳天井 ? 吴嗣铭

文章插图
? 吴嗣铭

文章插图
二楼卧室入口 ? 吴嗣铭

文章插图
立面 ? 吴嗣铭
明暗,高低,干湿的空间对偶处理,让温差产生气流,整个屋子都有习习凉风之感 。包裹感强烈的屋顶之下,包裹感强烈的屋顶,为生活在炎热潮湿气候之下的家人提供难得的荫凉 。

文章插图
? 吴嗣铭
项目图纸

文章插图
二层平面图

文章插图
剖面图
项目信息
项目名称:父母之家
建筑设计:WAU建筑事务所
项目完成年份:2022
建筑面积:240 平方米
项目地址:广东省吴川市吴阳镇较场村
- 看风水基础知识 风水知识宝典
- 坟前有一条河的风水 坟前有条河,对风水有影响的
- 哪个平台可以直播风水 看风水网络直播违法不
- 风水吉祥物有多大作用 风水的作用到底有多大
- 26甲龟为什么叫风水龟 大白龟下跪的风水
- 鱼缸在风水中的作用 水草缸有风水说法吗
- 香港风水罗盘下载 香港专业风水罗盘
- 欠钱不还风水怎么处理 风水怎样收欠账
- 猛虎下山风水图 猛虎出山风水图
- 风水中的砂 四神砂风水庭院
特别声明:本站内容均来自网友提供或互联网,仅供参考,请勿用于商业和其他非法用途。如果侵犯了您的权益请与我们联系,我们将在24小时内删除。
