坚持抛弃客厅,不买茶几电视,这对小夫妻家,成了装修界的教科书

文章图片

文章图片

文章图片

文章图片

文章图片

文章图片

文章图片
坚持抛弃客厅 , 不买茶几电视 , 这对小夫妻家 , 成了装修界的教科书
我认识一对年轻的小夫妻 , 这俩人从大学就开始谈恋爱 , 我跟小夫妻里面的妻子从大一的时候就是舍友 , 认识了快十年了 , 到现在关系也非常好 , 我当初在他们的婚礼上还给她当伴娘 , 现在我们工作也在同一个城市 , 我们住的地方也比较近 , 周末的时候我经常约她一起出来逛街 。 最近这对小夫妻在双方父母的支持下 , 买了一套小房子 , 房子户型比较小 , 只有36㎡ , 但是小夫妻现在还没有要孩子 , 两个人住绰绰有余 , 就算将来有了孩子 , 只要装修得当也能住的开 , 这套房子的装修是最大的亮点 , 在装修的时候没买茶几电视 , 没有设计出客厅 , 但是装修出来的成果直接成了教科书式级别 。
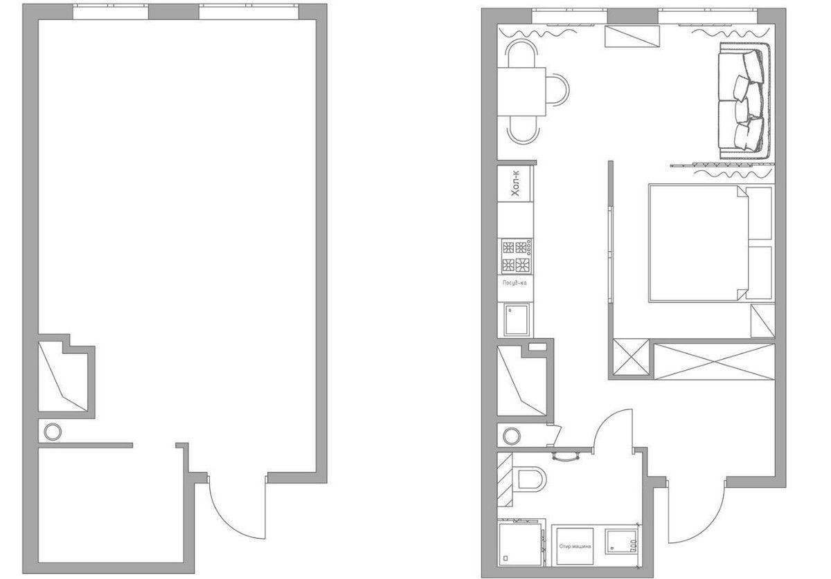
户型图
这是一张装修前和装修后连在一起的户型图 , 这样的户型图有利于对比装修前后的变化 , 从图上我们可以看到 , 整体的户型比较偏向于长方型 , 在装修前 , 有些地方是没有墙壁的 , 但是再看另一张图 , 装修的时候在不少的地方 , 增加了一些墙壁 , 然后在右图上户型构造的主要区域划分基本上一目了然 。
玄关【坚持抛弃客厅,不买茶几电视,这对小夫妻家,成了装修界的教科书】
玄关的空间比较宽敞 , 从正门进来以后 , 右手边有比较大的一块空间 , 可以用来当衣帽间 , 里面的三面墙壁 , 正对着的这块墙壁是蓝绿色 , 右边是石灰色砖块墙壁 , 左边整面墙都贴了几片从天花板一直到地面的镜子 , 这样在衣帽间换好衣服的时候 , 可以照一照镜子看看着装是不是得体 。 蓝绿色墙壁上有一个造型比较独特的晾衣架 , 下面是一个只有一层的黑色鞋柜 。
正门的左手边 , 有一小块地方是木制的挡板 , 从图上可以看到地板的纹路比较多 , 显得很高级 。 蓝绿色的墙壁上挂着一幅艺术照片 , 作为装饰品 。
厨房
厨房的色彩搭配比较丰富 , 看起来很时尚大气 , 特别是这个蓝绿色的墙壁 , 是点睛之笔 , 灶台下面橱柜以及旁边的冰箱 , 颜色比较相似 , 都是深灰色 , 既大气又耐脏 , 冰箱里可以放没吃完的剩饭剩菜 , 或者水果蔬菜之类的 , 可以保证其几天内不会馊掉 。 灶台下面有一个烤箱 , 可以用来烘烤点心 , 也可以用来蒸馒头 。 灶台上下的橱柜空间比较大 , 可以用来置物 。
特别声明:本站内容均来自网友提供或互联网,仅供参考,请勿用于商业和其他非法用途。如果侵犯了您的权益请与我们联系,我们将在24小时内删除。
