机械式升降滚床通常在举升行程不大于100mm时,采用的是由顶升装置,偏心轮组件,上下导向组件及电机滚床等部件组成,一般用来配合链式(或带式)移行机使用 。在移行机(积放)线体间布置1-2台或以上的举升滚床使用 。举升行程大于100mm以上时,一般采用的是导柱导套或其它的结构型式(略) 。
附图

文章插图
液压升降滚床示意图
1、滚床 2、固定升降台 3、开关架 4、开关挡板
5、下打开装置 6、上打开装置

文章插图
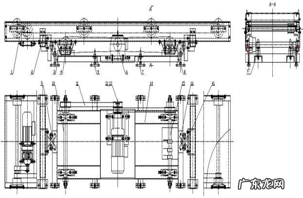
机械举升(升降)滚床示意图
1、辊床 2、托架 3、护板 4、垫块
5、螺杆 6、减速电机 7、底脚板 8、开关架总成
9、导向轮总成 10、传动轴总成 11、同步齿形轮 12、齿形带轮
13、挡盖 14、固定架 15、传动轴总成Ⅱ
16、导轨 17、底板
工作原理
升降滚床基本由升降部分与输送部分组成,由电气控制升降部分及输送部分的两种电机减速机的启停,完成不同标高输送线体滑撬的升降及输送(转挂)任务 。(略)
移行机
移行机一般用于工艺节拍性单件有选择性换道、转移输送、停位,节拍时间内完成接撬 、停撬、 输送 、对位、 放撬 、回位 等待等工艺流程 。通常移行机主要有链式移行机、轨道移行机及皮带移行机3种型式 。
轨道移行机的组成及工作原理
轨道移行机上部滚床与移行机分体制作、联接装配 。只要由上部滚床、横梁、驱动轮总成、从动轮总成、万向联轴联轴器、移行电机减速机、轨道、动力拖链等组成 。滚床左右C型板安装在两个横梁上,横梁两端连接驱动轮总成和从动轮总成,两驱动轮总成由万向联轴器连接,轨道通过调节装置固定在地面上 。电气变频控制移行机及滚床的速度,上部滚床实现等速接、送撬,下部移行机负责有选择行的换道、柔性输送、对位 。即前床有撬预启动接撬,撬体到位移行机输送,后床有撬本机对位停,后床要撬本机对位启动发送,前床无撬本机原位停机等待 。
附图

文章插图
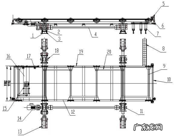
轨道移行机
1、底板 2、轨道 3、螺杆
4、万向联轴器 5、导向轮 6、活动挡块
7、移行开关总成 8、动力拖链 9、辊轮总成
10、端板 11、驱动轮总成 12、左C形板总成
13、限位器 14、移行电机减速机 15、辊床电机减速机
16、电机底板 17、辊床开关架总成 18、从动轮总成
19、右 C形板总成 20、齿形带
链式移行机的组成和工作原理
链式移行机主要由驱动装置、 张紧装置 、轨道支架 、轨道及B 型直板套筒 滚子链、 感应开关总成、 电机减速机、 固定挡板、万向联轴器及电控系统等组成 。电机减速机通过万向联轴器、驱动装置、链轮组件、张紧装置链轮组件,驱动直板滚子链沿上、下轨道封闭运行,加之举升滚床的配合,完成移行机的工艺节拍性有选择性换道、输送工序 。
附图

文章插图
链式移行机
1、驱动装置 2、轨道 3、张紧装置 4、张紧支架
5、轨道支架 6、支腿 7、驱动支架 8、调整垫
9、链条P=160 10、停止板
3.4.3皮带式移行机组成及工作原理
皮带式移行机主要由张紧装置、轨道、轨道支架、感应开关总成、固定挡板、驱动装置、平皮带、张紧支架及电控系统等组成,电机减速机通过两件万向联轴器传递动力给驱动及张紧装置的皮带轮,从而带动两条皮带同步运转 。平皮带由限位块限位,限制皮带运转,电气变频控制移行机的启、 停。与举升滚床配合完成工艺节拍性带件滑撬的选择性换、道输送工序 。(附图)
- 妹子多的交友软件 能和男人聊天的app
- 金命和火命的婚姻如何化解 金命和火命的婚姻如何
- 哪几种八字最不利婚姻和睦
- 和明星聊天的app 想聊天找哪个软件
- 吃玉米有啥好处 吃玉米的好处和功效与作用
- 大红袍有什么作用和功效 大红袍的功效与作用
- 蜜雪冰城柠檬水做法 柠檬水的做法和配方
- 蓝钻和蓝冠卖家的区别 淘宝蓝冠和蓝钻哪个好
- 相亲交友网软件下载 能和老外聊天的app
- 两人专用的聊天软件 教你和女生聊天的app
特别声明:本站内容均来自网友提供或互联网,仅供参考,请勿用于商业和其他非法用途。如果侵犯了您的权益请与我们联系,我们将在24小时内删除。
