
文章图片

文章图片

文章图片

文章图片

文章图片

文章图片

文章图片

文章图片

文章图片

文章图片

文章图片

文章图片

文章图片
男主人和女主人都喜欢非常有时尚感和设计感的家 , 因为家里的长辈不希望进行全部改动 , 所以只进行的局部修改和完善 , 保障空间功能的舒适感和精致感 , 让空间的布局更加优质 。
精装房实现空间升级 , 家里还有超大电竞房 , 享受不出门的快乐
房屋户型:两室
房屋面积:165平方米
装修预算:50万
设计师:李文伟
主要建材:铁件、石材、人造石、系统柜、木作、油漆、玻璃、仿清水模漆
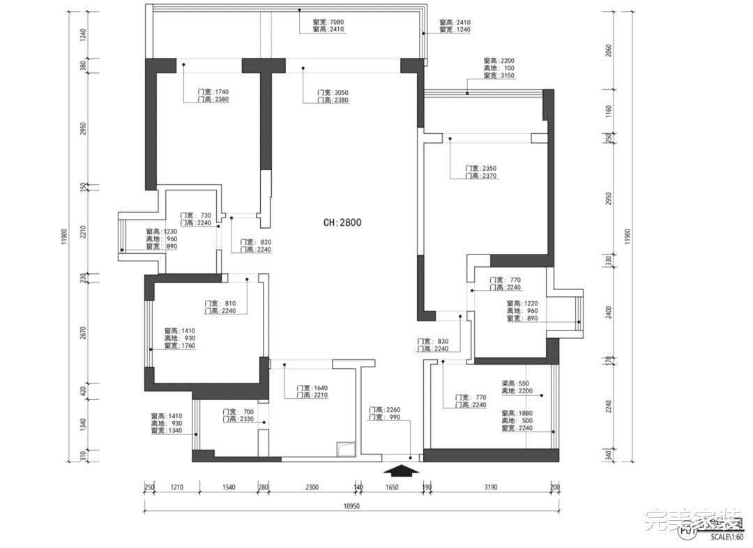
【户型图】
1:每一个房间都比较局促 。
2:主卧阳台基本是浪费的状态 。
3:厨房过于狭窄 , 冰箱都放不下 。
1:厨房阳台进行了封闭式改造 , 扩充了操作区的面积 。
2:主卧阳台重新纳入到功能区间 。
3:更改餐厅的布局 , 让动线更加合理 。
【玄关】
设计重点:开放式置物架满足储物需求
原始玄关区的面积小 , 装修也非常的老气 , 拆除之前破旧的玄关柜 , 增设了全新的开放式柜体 , 大大方便了业主日常的进出 , 也满足了储物需求 , 并且保证空间的整齐和美观 。
【客厅】
设计重点:组合吊灯实现空间的层次美感
客厅的空间布局非常的简单 , 利用极简的家具烘托出高级空间感 。 吊灯非常有个性 , 通过和落地灯合的组合 , 满足业主对空间光源的需求 , 也实现对空间格调的保证 。
特别声明:本站内容均来自网友提供或互联网,仅供参考,请勿用于商业和其他非法用途。如果侵犯了您的权益请与我们联系,我们将在24小时内删除。
