网友提问:遇到又短又窄的入户区,直接戳中了生活痛点——玄关柜该如何设计?
下面这位合肥业主家可以做参考案例,原始户型中,进门过道长1米2,墙体距离入户门只有30公分距离,感觉鞋柜放哪边都不合适!

文章插图
经过设计师调整后,入户玄关区摇身一变成下面这样▼

文章插图
前后变动都瞧不出是一间房!收纳翻倍不说,也解决了进门见厅的尴尬,具体实现步骤,可以分为两步↓
第①步:拆墙
前面已经说过,墙体离入户门距离太窄,根本放不下鞋柜 。于是我们选择拆除与厨房之间的隔墙,达到扩大玄关区域的效果 。PS:非承重墙才能拆!

文章插图
扩大化的玄关,做玄关柜就容易多了,沿着墙面做转角连体柜,玄关这一侧,底部悬空用来放拖鞋,隐藏不占地方 。中间留空便是换鞋凳了,坐着换鞋不比站着舒适?后方装上挂钩还能做挂衣区 。
其余空间便是为鞋子、日用品的存放做准备了,这么多层板,全家人物品加一起都不愁没地方放 。

文章插图
转角柜的另一边便是餐边柜了,满足小餐厅的收纳需求 。当然也有不少装修亮点:
?弧形护墙,边角更柔和,也减少碰撞的安全隐患;
?留空区域铺贴岩板,增加层次感;
?无把手柜门,显得简约大方 。

文章插图
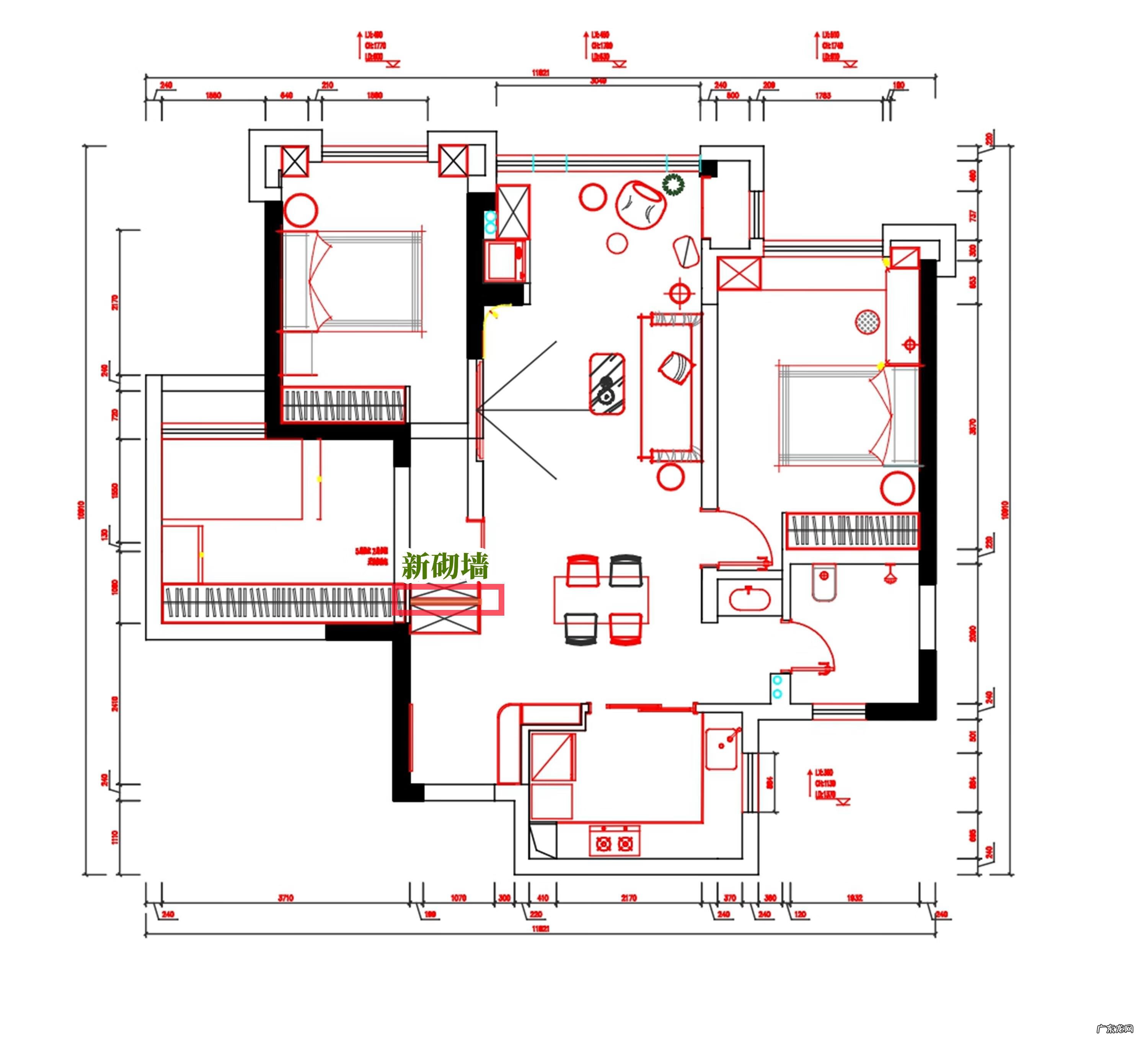
第②步:新砌墙
厚度只有6公分,位置就在入户门对面,针对进门就将家里一览无余的问题 。为了不浪费空间,沿着这面墙打造一排对称柜体,中间往内凹的区域,可以做端景墙,顶部嵌入筒灯,让人进门就眼前一亮 。两侧还是鞋柜,分类存放收纳翻倍,拿取也方便得很,实用度没得挑 。

文章插图

文章插图
玄关改造步骤够清晰明了吧!最后就是尺寸了,这里也毫无保留的分享下,仅供参考:

文章插图

文章插图

文章插图
【影面墙离大门多远最合适】
- 衣柜玻璃门对床位有什么影响 衣柜对床位不讲风水吧
- 办酒席没领结婚证怎么离婚 没办结婚证怎么离婚
- 门上装柜子影响风水吗
- 取保候审对担保人也没有什么连累性的影响
- 离婚后一方对财产分割不执行怎么办
- 女方提出离婚对谁有利 由女方提出离婚
- 森林之子毛克利和奇幻森林 电影森林之子毛克利
- 离婚的财产分割协议有效力吗
- 韩国风水师 关于风水的韩国电影
- 房子化粪池留在什么位置风水好 房子前有化粪池影响风水吗
特别声明:本站内容均来自网友提供或互联网,仅供参考,请勿用于商业和其他非法用途。如果侵犯了您的权益请与我们联系,我们将在24小时内删除。
