衣柜是卧室里不可或缺的一件大家具,它为我们提供了实用方便的衣物收纳存放位置,而对于衣物较多的家庭而言,卧室不光要有衣柜、而且衣柜还必须要大才够用!但通常卧室的面积都比较小,因此在设计衣柜摆放位置的时候,也有一些客观因素需要考虑 。卧室可以摆放衣柜的位置分别是床尾处与床侧边,那么这两个位置哪里更加适合呢?今天我们就来聊聊衣柜摆放位置的设计!

文章插图
1、影响衣柜摆放的因素有哪些?
①卧室门
卧室衣柜的摆放位置,首先是要避开卧室门扇的开启范围,避免衣柜顶住房门的情况,保障基本动线的流畅 。

文章插图
▲卧室门扇的开启区域,不能摆放衣柜 。
【床尾对窗户风水好吗 带床头床尾的床的风水作用】②卧室窗
窗户是空间自然采光的源头,而衣柜的高度一般都是2米多高,如果挨着窗户摆放衣柜的话就要挡住窗户的采光了,因此卧室的衣柜一般也不能挨着窗户这面墙 。

文章插图
▲衣柜不能挡住窗户,避免影响采光 。
③床的位置
衣柜的开启、整理衣物时,都需要有一定的活动空间,因此床与衣柜之间需要保留出60-70cm的动线,这样既不会影响日常通行,又不会开启的衣柜门与床互相冲突,让衣柜用起来更加方便 。

文章插图
▲床与衣柜之间,需要保留60-70cm的动线间距 。
④卧室的户型
卧室比较长的户型,衣柜适合放在床尾;卧室比较方的户型,衣柜适合放在床侧边,当然具体还是需要根据户型的现场尺寸来定 。

文章插图
▲卧室的户型,对衣柜的布置影响很大 。
2、衣柜放在哪里好?
卧室里适合放衣柜的位置有两个——床侧边与床尾边,哪个位置更合适放衣柜呢?
①床侧边
在卧室宽度较大的情况(床宽1.5m+过道60cm+衣柜厚度60cm=2.7米),衣柜沿着床的摆放布置在床侧边,这样布置衣柜相对来说会更合适一点 。但是这种衣柜布置方案,在床头柜区域会影响衣柜门的开启与使用,因此要么是用推拉门衣柜,要么是床头柜区域的衣柜做成开放格的,否则最里面的衣柜门是会被床头柜顶住的 。

文章插图
▲衣柜设在床侧边 。
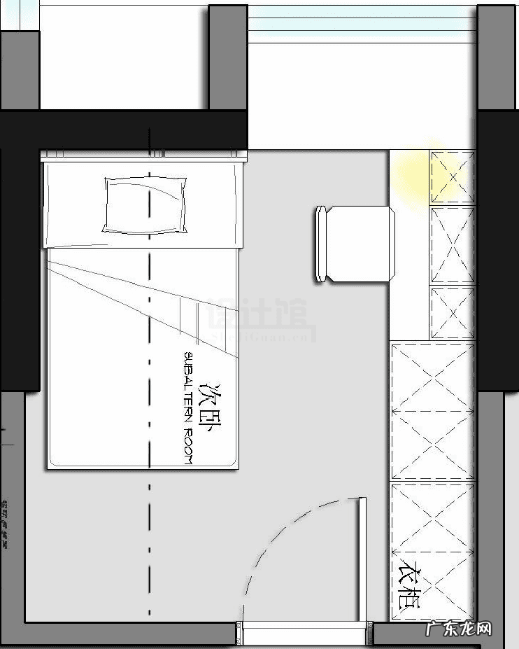
②床尾边
在卧室长度较大的情况(床长2.1m+过道60cm+衣柜厚度60cm=3.3米),衣柜就可以设置在床尾边上,这样床的宽度就可以根据卧室自由调节,衣柜也不会受到床头柜的影响 。

文章插图
▲衣柜设在床尾后 。
③多个衣柜
如果卧室的长宽尺寸都比较大,并且家里衣物比较多的话,也可以采取多个衣柜的布置方案 。

文章插图
▲卧室较大,可以放多个衣柜 。
在卧室户型布局合适的情况下,衣柜放在床尾或是床侧边是可以的,而床侧边受限于床头柜的影响,在靠床头区域的衣柜会使用受阻,因此相对来说床尾放衣柜还会更好用!当然,具体摆放在哪个位置更合适,还需要结合卧室的户型与门窗、床铺的位置关系来决定 。
- 王牌对王牌王俊凯易烊千玺王源是哪一期 王牌对王牌王俊凯易烊千玺王源是在哪一期
- 古代对神仙的雅称
- 猫咪的羊奶凉了可以喝吗
- 贱内对应的称呼是啥 贱内对应的称呼是什么
- 韩国人吃面条为什么不咬断
- 台风天为什么窗户会进水
- 微信看对方朋友圈对方知道吗 微信看对方朋友圈对方是否知道
- 古代对中秋的雅称
- 微信仅对一个人可见那个人知道吗 微信仅对一个人可见那个人看得见吗
- 女人床对面放盆栽好吗 女人床对面放盆栽好不好
特别声明:本站内容均来自网友提供或互联网,仅供参考,请勿用于商业和其他非法用途。如果侵犯了您的权益请与我们联系,我们将在24小时内删除。
