
文章图片

文章图片

文章图片

文章图片

文章图片

文章图片

文章图片

文章图片

文章图片

文章图片

文章图片

文章图片

文章图片

【二手房的再改造,让旧屋获得了新生】项目:观澜苑房间改造
面积:107㎡
设计团队:花漾美作·空间设计
设计的最终目的是将居者最真实的生活状态在居所中展现 , 在快节奏的都市生活中 , 更期待一个零负担的 , 清新愉悦的居住环境 , 在这方小天地中 , 可以修一隅以安身心 , 以达到最理想的生活状态 。
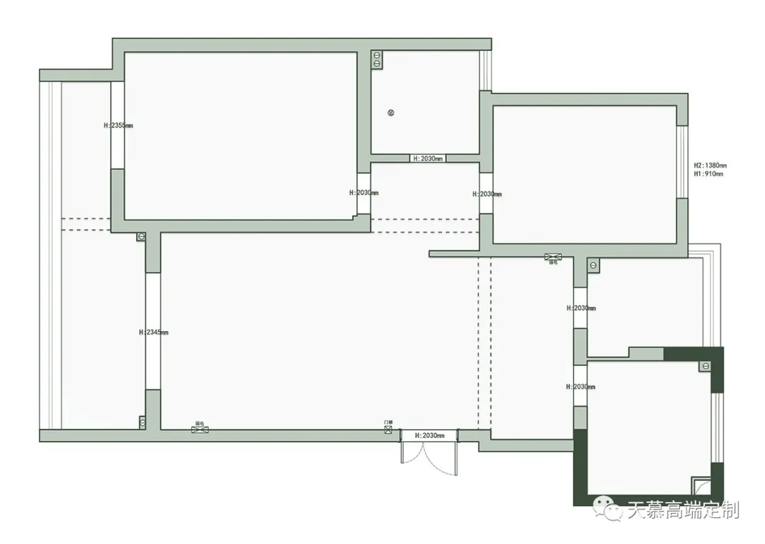
平面图
自然暖灰色艺术漆墙为色调 , 与同色格板装饰过渡 。 表达了业主在舒适的居住空间中追求理性思考的生活态度 。 简约线条的现代空间大面积使用暖白色和原木 , 配以浅草绿色、趣味黄色等色彩 , 达到温馨时尚的家居氛围 。
整体采用无主灯设计 , 踢脚线用艺术油漆代替 。 空间从上到下流畅整合 , 营造出统一的序列感 , 拓展了空间视野 。 整铺的原有木地板让空间延伸性更强 , 自然的步行感也让紧凑的城市生活在回家后得到释放 。
特别声明:本站内容均来自网友提供或互联网,仅供参考,请勿用于商业和其他非法用途。如果侵犯了您的权益请与我们联系,我们将在24小时内删除。
