
文章图片

文章图片

文章图片

文章图片

文章图片

文章图片

文章图片

文章图片

文章图片

文章图片
中国的一人户家庭数量达到惊人的1.25亿!其中年轻人占到一人户家庭的一部分 , 而越来越多的年轻人也选择过独居生活 。
在广州 , 这位30岁小姐姐也开始了独居生活 , 奋斗了7年终于买下一套58㎡的一居室房子 , 全屋设计精致而淡雅 , 布局舒适休闲 , 堪称“一人户”家庭的典范 。
接着我们来看看吧 。
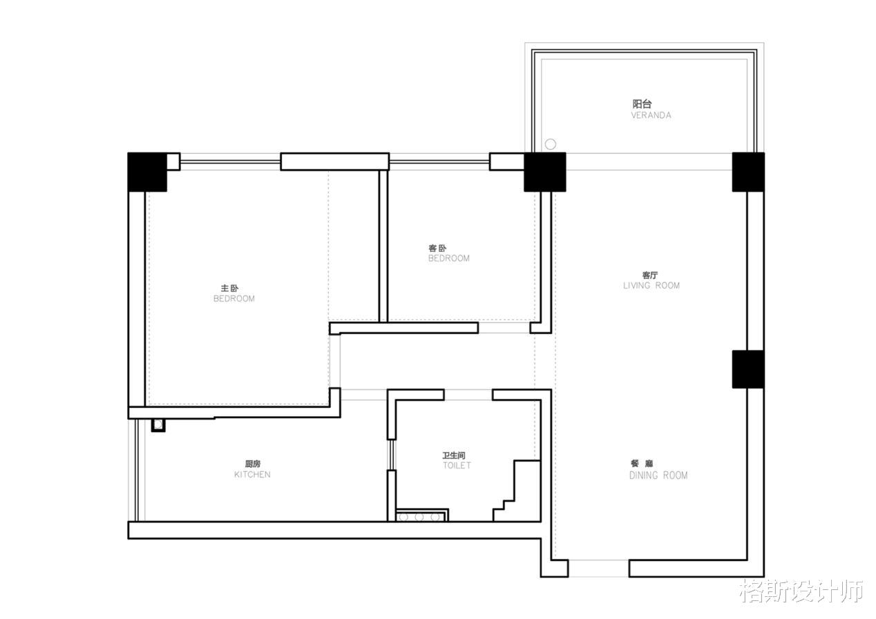
平面布局这套房子原始平面是二房二厅的布局 , 这位小姐姐在收楼后 , 决定只保留一个房子即可 , 房子面积偏小 , 希望装修完看上去要显大 , 她把这些要求告诉设计师后 , 设计师在平面布局上做出了很大胆的改动 。
▲原始平面图
▲平面布置图
最终的平面布局如下:
●全屋墙体只保留主卧室和卫生间的墙 , 其它墙体全部拆除 , 打造一个开放式的空间 , 让整体更宽敞大气 。
●冰箱放在玄关右侧的高柜内 , 鞋柜设在其转角位置 , 与餐厅的酒柜连成一体 , 餐台设在鞋柜的背面 。
●厨房为开放式设计 , 靠墙一排橱柜 , 转角设置了一张吧台 。
●卫生间设置在原厨房位置 , 干湿分离 。
●客厅旁设置开放式的多功能房 , 平时小姐姐可以在此工作、看书、思考人生 。
设计概念
小姐姐是从事艺术创造方面的工作 , 她喜欢安静、淡雅的空间 , 在这样的环境下更能激发她创造的灵感 。 全屋色调以深灰、白、棕色为主 , 在设计上 , 所有造型都以简单为主 , 加上房子的自然光线相当充足 , 像给全屋渲染了一层光晕 , 十分好看 。
玄关&餐厅&厨房
▲玄关&餐厅&厨房
一进到玄关 , 就感受到浓烈的温馨感 , 玄关的3面墙体和天花都做了木饰面 , 搭配古铜色的入户大门十分和谐 。 隐藏冰箱的高柜柜门也是隐藏式设计 , 如果小姐姐不说 , 你还真是找不到冰箱在那 。
特别声明:本站内容均来自网友提供或互联网,仅供参考,请勿用于商业和其他非法用途。如果侵犯了您的权益请与我们联系,我们将在24小时内删除。
