220平的现代风住宅,用简约的元素,刻画出独一无二的家

文章图片

文章图片

文章图片

文章图片

文章图片

文章图片

文章图片

【220平的现代风住宅,用简约的元素,刻画出独一无二的家】整栋房屋依照主人的居住要求以及家人的生活习惯 , 将其功能区作了简单的调整 , 部分的墙体需要重置 , 缩减或扩大 , 隔开的阳台一律推掉墙体 , 让其归到卧房的面积 , 增加的了空间面积 , 也放大了视野的边界 , 采光更直接 , 阳光露台的意义完全实现 , 与阳光的呵护中读书或者独处 , 如此经济便利的享受日光的美好 , 轻松可得 。
220平的现代风住宅 , 用简约的元素 , 刻画出独一无二的家
案例:轻松惬意的现代简约居
居住成员:大人 , 小孩
房屋面积:220㎡
房屋类型:大坪数
空间格局:3房2厅2卫
主要建材:环保漆/天然理石/原木
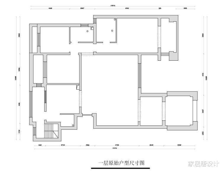
【户型图】
设计重点:将阳台全部纳入卧房空间
拆掉显示部分的墙体 , 做了重新的规划布置 , 增设了入户的鞋子收纳及更换的区域 , 其位置由厨房的墙体部分出 , 另外将露天的阳台改成了书房 , 为了增加空间的功能区及多方面的使用所需 , 客餐一体的空间也是因面积所限制 , 双卫各自都有淋浴的空间 , 厨房也专设了西式的用餐吧台 , 中西进餐仪式皆有 。
【客厅】
设计重点:饱满又立体
客厅做了凹进式的吊顶 , 遮挡内部的线管及空调风口 , 球状的多头吊灯十分现代 , 双人座的皮质沙发顺着窗边摆放 , 窗帘做了拼接式 , 颜色风格同沙发 , 墙壁做了线条勾勒 , 灰色系的理石地面放了一块同沙发主色的地毯 , 完整了空间的整体视觉感 。
【厨房】
设计重点:雀鸟休憩的吊灯
餐房为全开放式 , 双门的纯黑色系的冰箱完全的置入橱柜内 , 与白色的柜体形成黑白配 , 拐角的位置了做了吧台形式 , 地柜便于收储 , 台面可置物 , 亦可作为用餐区 , 吊灯选了设计感特别的群鸟灯 , 白色的灯体也衬着厨房的高大上与整洁 。
【餐厅】
设计重点:长凳与餐椅错搭的形式
餐厅采用了偏暖白的色系 , 餐椅是唯一跳脱的色系 , 绿丝绒的外衣跟茂盛的绿植作了完美的呼应 , 布艺面料包裹的长凳作为餐椅与椅身后的沙发算作平衡的关系 。 餐边柜预留了陈列区 , 收纳主人各种收藏与个性小品类 。
特别声明:本站内容均来自网友提供或互联网,仅供参考,请勿用于商业和其他非法用途。如果侵犯了您的权益请与我们联系,我们将在24小时内删除。
