135平现代简约,客厅书房连在一起,宽敞大气!

文章图片

文章图片

文章图片

文章图片

今天分享的是一套建筑面积135平米的现代简约风三居室案例 , 房子原本是四居室的格局 , 设计师把客厅和书房连在了一起 , 让整个空间看起来宽敞了不少 , 而且还把电视给舍弃 , 用隐形投影幕布来代替 , 增添了一些文艺感 。
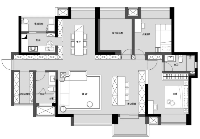
平面布置图
入户玄关是一条长走廊 , 设计师利用其中一侧的墙面做上了到顶的白色鞋柜 , 在鞋柜当中留空一部分 , 方便日常使用 , 又不会让玄关显得太过压抑 。
走过玄关之后就到了客厅、书房二合一的空间 , 利用一个矮墙书柜作为隔断 , 把书房和客厅分开 。 矮墙的上方吊顶内隐藏了投影幕布 , 整体显得格外简洁 。
整个客厅的配色以灰色为主 , 墙面、沙发和地毯都是灰色调的 , 在侧方摆放两个棕色的皮质单椅 , 让客厅显得更有格调 。
餐厅位于玄关走廊的另一侧 , 餐桌椅的款式简洁而又大气 , 在餐厅侧方的墙面做上了创意的照片墙 , 让餐厅变得更加温馨 , 很有情调感 。
餐厅和厨房之间用玻璃推拉门作为隔断 , 门的两侧都做上了到顶的餐边柜 , 留空部分作为展示搁架 , 可以提升餐厅的颜值 。
厨房内部是做了L形的橱柜布局方案 , 角落里的移动料理架也让烹饪变得更为轻松 。 整体灰色的墙地面搭配米色的橱柜 , 显得轻松而又舒适 。
主卧室的配色也是以灰色为主 , 床头背景墙上对称的挂画和壁灯让卧室看起来更为和谐 。 侧方的嵌入式衣柜也给卧室带来了足够的储物空间 。
除了儿童房外 , 屋主还做了一个全屋榻榻米的休闲娱乐区 , 全屋榻榻米有着一定的储物空间 , 孩子平时在这里玩玩具、做游戏也安全一些 。
卫生间内部摆放了浴缸 , 浴缸的一侧做上了壁龛的设计 , 让卫生间多出一些储物空间 。 灰色与白色相间的设计让卫生间看起层次分明 。
【135平现代简约,客厅书房连在一起,宽敞大气!】齐家栗子提供更多装修资讯 , 喜欢的朋友记得收藏和关注哦!图片来源网络:侵权联系删除
特别声明:本站内容均来自网友提供或互联网,仅供参考,请勿用于商业和其他非法用途。如果侵犯了您的权益请与我们联系,我们将在24小时内删除。
