欧式别墅一直都是农村别墅的大热户型,其外观简约大方,造型简洁流畅,构造精细别致,非常受欢迎 。但是自建的欧式洋房各地差异都很大,除了无一例外保有的罗马柱,其面貌形态各异,颜色也绚丽多变 。有些房子,由于色彩太过跳脱,房子反而显得不伦不类,那么究竟该如何避免这个问题呢?别急,今天就特别推出3套配色一致的欧式别墅,照着最经典的配色方案建新房准没错!
户型一:
非常经典实用的一款户型,保持欧式别墅的简约大气,配色清爽,超大采光窗增加室内采光,罗马柱更增美感 。

文章插图
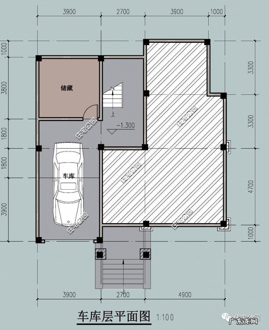
平面布局图:
充分利用一层房高,建了车库和储藏室,也起到隔离作用,很实用 。

文章插图
入户门厅与客厅相连,空间联通性较好;设有软隔断,隔绝室内视线,私密性较好 。

文章插图
【别墅三根罗马柱好吗 欧式别墅的罗马柱是怎么做的】二层为居住区,3卧室1书房1起居室,布局简单,分区明确,注重居家生活的品质 。

文章插图
三层同样是居住区,主卧配置豪华,独立卫生间、衣帽间和书房一应俱全,提高生活质量和居家水平;露台满足日常的晾晒 。

文章插图
户型二:
造型方正,造型简洁,细节处理非常细致精美,更有欧式风情 。

文章插图
平面布局图:
设有侧门,直通厨房,出行更加方便;将老人房设在一楼,免去频繁上下楼梯的劳累,自带独立卫生间,居家生活更加便捷 。

文章插图
二层设有大小两个卧室,布局简单实用;封闭的备用客厅可做家庭影院,开发性强 。

文章插图
三层布局与二层相识,不同的是会议室内多出了书房,顶楼的安静氛围适合学习办公;主卧的衣帽间改做半开放式的起居室,可做休闲娱乐场地 。

文章插图
户型三:
此套户型相较于前两套,层数较高,3层半适合多人口的大家庭居住;采用与前两套一样的配色,别墅立面增加了许多线条,层次感十足,十分别致 。

文章插图
平面布局图:
前后门,皆设有入户平台,房子整体更加协调,更有美感,出入也更加便利;入户即堂屋,符合农村的风俗习惯,可设神龛,方便祭祀参拜 。

文章插图
二层设有卧室和书房,主卧更是配置豪华,附属功能空间一应俱全,打造完美的居家氛围和卓越的生活品质 。

文章插图
三层空间布局与二层一致,不同的是室外的露台改做了坡屋顶,房子整体更有层次感,外观更精美 。

文章插图
四层预留出超大面积的露台,适合晾晒农作物,符合农村生活的实际需求 。
- 三根线怎么分火线零线
- 三孔插头三根线怎么接
- 叠加别墅图片 叠加别墅风水图片
- lv是数字几
- 室内装修三根柱子风水好吗
- 别墅白蚁有什么防治方法 别墅白蚁防治收费标准多少
- 两层别墅装修设计风格怎么选 别墅装修风水有哪些禁忌
- 二层别墅装修有哪些技巧 二层别墅装修注意什么
- 别墅门头拱形风水好吗
- 别墅南北入户哪个好 别墅南入户和北入户风水
特别声明:本站内容均来自网友提供或互联网,仅供参考,请勿用于商业和其他非法用途。如果侵犯了您的权益请与我们联系,我们将在24小时内删除。
