113平的北欧风三房,清新中又有典雅感,好喜欢的设计!

文章图片

文章图片

文章图片

文章图片

文章图片
齐家小编今天分享的是一套建筑面积113平米的小三房设计 , 屋主选择了北欧风为主 , 搭配了一些比较稳重的软装、家具 , 让这套房子在小清新中又透露出一些典雅、大气的感觉 , 齐家小编觉得这样子的混搭超级赞 , 你们也来看看吧!
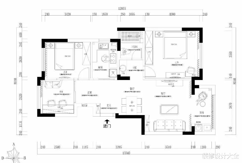
平面布置图
入户的第一个空间就是餐厅 , 餐桌椅直接靠着走道的墙面摆放 , 避免走道太过狭窄 。 玄关正对的餐边柜和隔板非常实用 。
餐厅边上的厨房空间 , U字型的橱柜很适合方正的厨房 , 厨房的角落里还放了个小推车 , 方便放一些蔬菜、水果 。
齐家小编最喜欢的还是这个客厅 , 以蓝色为主的北欧风空间中 , 搭配了沉稳的沙发和单椅 , 给这个小清新的空间带来了一些大气感 。
电视背景墙上没有做任何装饰 , 简单的刷上蓝色乳胶漆就好 。 客厅的侧边就是卫生间的干区 , 洗手台刚好被嵌入进了凹槽内 。
客厅和阳台直接也没有隔断 , 这样看起来会更宽敞一些 。 阳台的一侧做了洗衣机、洗手台和隔板架的设计 , 满足收纳和实用性 。
主卧室是选择了更为温馨的米色作为主色调 , 米色背景墙搭配浅棕色的窗帘和白色的床品 , 让人感觉非常的舒服 。
次卧是延续了主体的蓝色作为主色调 , 而且在小清新的蓝白搭配之中 , 选择了深木色的家具 , 让卧室更加的沉稳 。
书房装着双人位的书桌椅 , 书桌上方是吊柜书架 , 整体宽松的空间 , 为主人提供了个舒适的在家工作学习空间 。
【113平的北欧风三房,清新中又有典雅感,好喜欢的设计!】
卫生间内部的空间并不算宽敞 , 用挡水条和浴帘来隔离淋浴区 , 马桶的背后用花砖作为点缀 , 让卫生间更加有时尚的感觉 。
特别声明:本站内容均来自网友提供或互联网,仅供参考,请勿用于商业和其他非法用途。如果侵犯了您的权益请与我们联系,我们将在24小时内删除。
