一家三口85平新房,全屋简单漂亮,横厅设计让空间大一倍,很舒服

文章图片

文章图片

文章图片

文章图片

文章图片

文章图片

文章图片

文章图片

文章图片

文章图片

今天给大家分享装修主题:一家三口85平新房 , 全屋简单漂亮 , 横厅设计让空间大一倍 , 很舒服!
这是一套属于他们一家三口85平新房 , 坐标位于广东广州 , 这是属于他们家人生第一套新房 。 考虑到家里需求 , 定位偏北欧风格 , 并且公共区域选择无主灯的设计 。 根据户型的特点 , 整个空间最大亮点就是横厅设计让空间大一倍 , 看着很舒服 , 很大气 。 全屋搭配出来的效果简单漂亮 , 太喜欢了 。 觉得很有参考价值 , 给大家分享一下 , 希望能给大家带来好的装修灵感 。
对于一家三口来说 , 拥有一套属于自己家的新房子 , 按自己家的需求或者想法去装修 , 总能装出蛮不错的一种效果 。 家里户型如果是横厅或者竖厅的话 , 给人的感觉更觉得大气 , 很舒服 。 对于这样的家 , 其实还是比较羡慕的 。
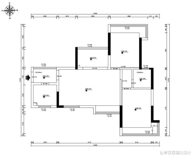
户型图
这是原始结构户型图 , 其实可以看到 , 客厅和餐厅是在一个空间 , 并且属于横向的布局 , 所以称呼为横厅 。 如果是竖向的朝向 , 那么就叫做竖厅了 。 户型其实整体还可以 , 但是局部还是做一些小变动 , 会更合理!
这是改造后的家具平面布置图 , 主要亮点如下:
第一 , 客餐厅属于横厅的设计 , 为了起到划分的作用 , 中间设计了隔断 , 功能性很强 。
第二、做了卫生间的干湿分离 , 洗漱刷牙不会有任何影响 。
其他空间基本都是按户型去布局了 , 大家可以跟原始结构图对比一下 , 一目了然 。
入户玄关
一进屋 , 看到这样的入户玄关采光真的很好 , 有一个落地窗 , 给人一种非常舒畅的感觉 。 利用窗户的位置 , 在不影响采光的情况之下 , 布置了小鞋柜 , 包括换鞋凳 , 可以非常方便坐着换穿鞋子 。 平时需要遮阳 , 安装了百叶窗帘 , 更为灵活使用 。
特别声明:本站内容均来自网友提供或互联网,仅供参考,请勿用于商业和其他非法用途。如果侵犯了您的权益请与我们联系,我们将在24小时内删除。
