她家因为阳台火了,故意抬高15cm,美观又实用,简直像多出一间房

文章图片

文章图片

文章图片

文章图片

文章图片

现在装修新房 , 都讲究越简洁越耐看 。 干净整洁 , 不仅住着舒服 , 还可以减少很多不必要的打扫问题 。 今天分享一套70㎡的两居室新房 , 装修很简洁 , 没有花哨的设计 。 但是她家却因为阳台火了 。 故意抬高15cm , 不仅美观实用 , 简直像多出了一间房 。
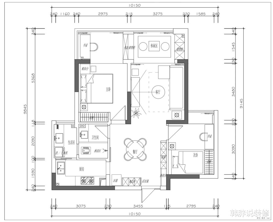
新房的户型并不大 , 两室两厅一厨一卫的格局 , 不过带有两个大阳台 。
入户并没有玄关 , 一进门就看到餐厅 。 为了实现入户的收纳功能 , 把餐厅的餐边柜和鞋柜结合在一起 。 不仅拥有强大的收纳效果 , 还把电冰箱嵌入在里面 。 电冰箱的边上有一扇谷仓门 , 后面就是厨房 。
全屋装修以原木风为主 , 静谧自然营造出柔和的居家氛围 。 餐厅的中间摆放一套原木打造的圆形餐桌椅 , 素雅的色调 , 显得静谧舒适 。
餐厅和客厅是开放式设计 , 装修风格一致 。 全屋木地板 , 墙面只刷大白墙 。 颜色和风格很搭配 , 让小小的空间显得更加清爽大气 。
客厅的外面带有一个阳台 , 装修的时候把客厅和阳台打通 。 让原本并不大的客厅 , 在视觉上面得到了延伸 。 并且阳台故意抬高了15cm , 打造成了地台 。 摆放上蒲团和桌几 , 两边墙面定制收纳功能 。 休闲、实用两不误 , 简直相当于多出了一间房 。
客厅的沙发背景墙没有做多余的造型 , 挂了两幅装饰画做简单的点缀 , 更加清爽耐看 。 灰色的布艺沙发啊 , 精致的茶几 , 搭配地毯 , 搭配出来的效果时尚又温馨 。
【她家因为阳台火了,故意抬高15cm,美观又实用,简直像多出一间房】厨房的空间并不大 , L型的工作台 , 安装了橱柜和吊柜 。 原木色的橱柜搭配白色的方块瓷砖 , 视觉效果整洁又清新 。 因为面积紧凑 , 放弃了单独的油烟机 , 而采用集合好几种功能的集成灶 。
卧室的装修设计 , 延伸了客餐厅的效果 。 原木+白墙的主基调 , 没有多余的色彩 , 也没有繁琐的造型、装饰 。 整体效果显得整洁清爽 , 营造出了温馨舒适的睡眠环境 。 主卧室的阳台也抬高15cm设计成地台 , 并且布置了梳妆台和收纳柜 , 有效划分功能区 。
床头背景墙做了简单的造型 , 木地板贴上墙1米 。 不仅可以保护墙面 , 还可以当床
次卧的面积比主卧室紧凑了不少 , 现场定制床铺 , 这样可以避免空间浪费 。 床头可以摆放物品 , 不需要单独再准备床头柜 , 节省了不少空间 。
最后看看卫生间 , 全屋采用统一的灰色瓷砖 。 浴室柜采用悬空设计 , 不仅好看 , 还不会形成卫生死角 , 方便打扫 。 淋浴区设计了玻璃隔断 , 干湿分离效果非常出众 。
- 自己当老板10年了,今年因为疫情失业了,给别人打工上班能适应吗?
- 你因为嘴误,闹出什么尴尬的笑话?
- 武则天之子李显是怎么复位
- 做不做开放式厨房?看完她家立马不纠结了
- 养这3种多肉包菜,如同引领庭院和阳台的“多肉之舞”
- 要不是因为周琦,我还不知道CBA有周琦规则,阿联姚明都没这待遇
- 拼多多放单主持好做吗?怎么做?
- 小跳蚤引起问题
- 小狗负伤急救指南
- 物流代发怎么收费?物流代发平台怎么选?
特别声明:本站内容均来自网友提供或互联网,仅供参考,请勿用于商业和其他非法用途。如果侵犯了您的权益请与我们联系,我们将在24小时内删除。
