
文章图片

文章图片

文章图片

文章图片

案例简介
项目地址丨昆海湖
项目面积丨400㎡
设计师丨杨勖
设计风格丨日式
一层布置图
运用巧妙的隔断 , 合理分配空间 , 把空间分为四个功能 , 分别是餐厅、厨房、游戏室、厕所、功能多样完整 。 餐厅与厨房相连 , 动线合理化 。 入户空间与玄关空间较大 , 符合户型 , 彰显别墅气势
二层布置图
合理规划空间面积 , 分清主次关系 , 使每个空间面积合理 。 客厅面积最大 , 宽阔气派;茶室居于次位 , 满足会客需求;再次 , 是书房 , 满足主人办公、阅读需求 。
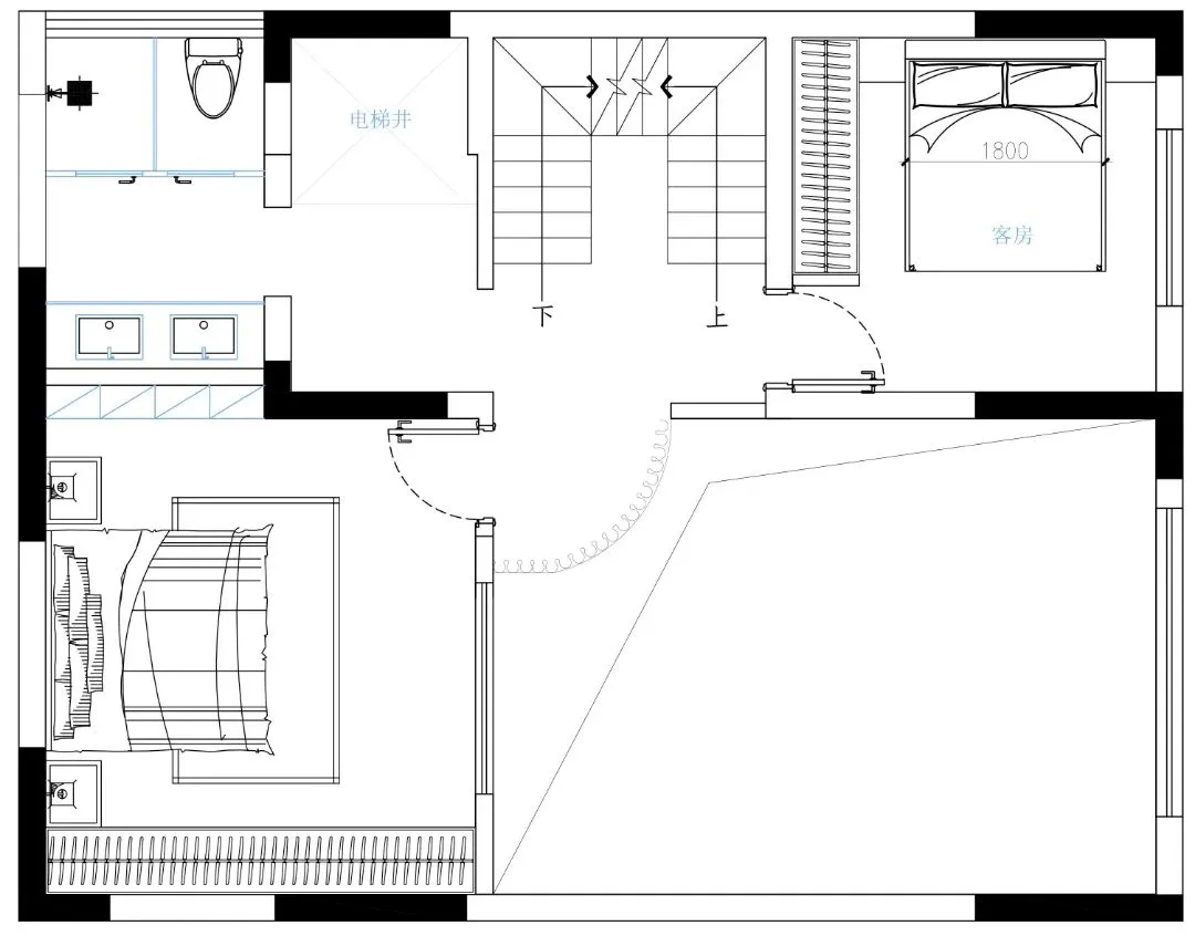
三层布置图
三楼为次卧与客房 , 二三楼挑空设计 , 让视野更加宽广 , 采光条件更好 。 设置公共卫浴 , 提高便利度 , 增加空间利用率 。
四层布置图
主卧面积大 , 符合别墅户型 。 有衣帽间、卫浴 , 功能齐全 , 空间宽敞 。 还配有休闲区域 , 与生活阳台相连 , 空间分配与动线合理 , 户型规划整齐 。
客厅
二层三层的挑空设计让客厅更加宽阔明亮 。 电视墙定制了组合收纳柜 , 原木+白色的色彩搭配白色的墙面 , 原木色的线条装饰 , 白色的布艺沙发;再加上黑白线条装饰地毯 , 增加时尚感 。
餐厅
厨房与餐厅相连接 , 空间大而通透 , 整体颜色以白色为主 , 以原木色为辅 。 做无主灯设计 , 酒柜既起到储物作用 , 又起到装饰作用 。 为简约的空间带来一点奢华 。
书房
【【鲁班装饰】昆海湖400㎡日式风格,淡雅节制】简约高级的挂画和墙面装饰又深化了赏性 。 在此练练书法 , 看一本好书 , 陶冶情操 , 细品生活 。
主卧
卧室以白色、原木色为主 , 加上少许灰色加以点缀 。 干净明亮 , 有设计感的白色主灯与线条灯、小圆灯 , 还有吊线灯营造温馨、宁静的气氛 。
次卧
次卧做无主灯设计 , 线条灯照明打造温和氛围 。 顶上的飘带装饰物与背景墙的装饰物呼应 , 软硬材质的碰撞 , 刚与柔并济 。
本期的分享到这里就结束了 , 喜欢的小伙伴赶紧行动起来吧~
- 日本pinx着压美腿袜真能瘦腿吗
- lasya瘦腿袜香港专柜价格
- ppt选项按钮怎么设置? ppt自定义按钮怎么设置
- 刚洗完澡可不可以拔罐啊?
- 淘宝店铺素材图怎么做?有哪些要求?
- 美团“无人设备控制”专利获授权可在目标区域内有效规避碰撞事故
- 腰部疼痛的原因 5招预防尿管卡结石
- 喝七日瘦身汤的时候 水果怎么吃?
- 瘦腿袜真的有用吗 静脉曲张袜 真的有用吗吗
- 楚霖记六降减肥茶是假的我吃了不管用
特别声明:本站内容均来自网友提供或互联网,仅供参考,请勿用于商业和其他非法用途。如果侵犯了您的权益请与我们联系,我们将在24小时内删除。
