
文章图片

文章图片

文章图片

文章图片

文章图片

文章图片
再大、再好看的房子 , 如果没有实打实的设计点在背后支撑 , 那也只是金玉其外 , 败絮其中 。 这套136㎡ , 位于龙湖景粼玖序 , 今天算是硬装彻底完工了 , 打扫干净给大家看看 , 因为有专业装修人士的把控 , 所以一处没踩坑 , 其中有5大设计点我是越看越喜欢 。
?收纳型电视墙
收纳是家逃不开的话题 , 柜子打得多在常人眼里 , 势必也绕不出”拥挤、压抑“两词 , 但是她家 , 你看 , 阳台合并 , 打一整排收纳柜 , 白色柜门配上无手把 , 地面灰色哑光瓷砖通铺 , 反倒显得家又大又宽敞 。
条件合适 , 这种收纳所有东西的快乐真的建议大家都来体验一把 , 所有杂七杂八的东西统统往里放 , 柜子一关 , 岁月静好 , 这真的是邻居朋友来参观都会拍腿叫好的设计!后续有孩子 , 收纳上你也能省心不少 。
尺寸、材质图中都标注清清楚楚 , 电视周围的留空 , 错层设格子柜以及地台 , 根据自己预算和喜好取舍 , 有了木饰面以及大理石花纹的点缀 , 整个质感没得说 。
?大面积使用木饰面
装修出高级质感 , 材质是关键 , 在墙面顶面 , 客厅卧室都用上木饰面 , 其自带的木质舒适度将干净温馨的氛围拉满 , 这难道不比做复杂造型、刷乳胶漆更耐看吗?
若碰到背后是小房间的情况 , 一同做成隐形门 , 既弥补了户型缺陷 , 同时还能保证了墙面的整体性和美观度 。
?吊顶做弧面造型
咱就是说 , 看了那么多吊顶造型 , 唯独对弧形、倒角的方式情有独钟 , 无论用在哪儿都造型感十足 , 且在视觉上 , 还很好缓解了有梁的地方层高突然降低的突兀感 。
流畅的线条本身就很容易博得众人好感 , 不打眼的小角落 , 再看都是高级感 , 结合不同家庭情况 , 用在背景墙也是行得通的 , 算是”花最少的钱 , 提升质感了“~
▲客厅电视墙
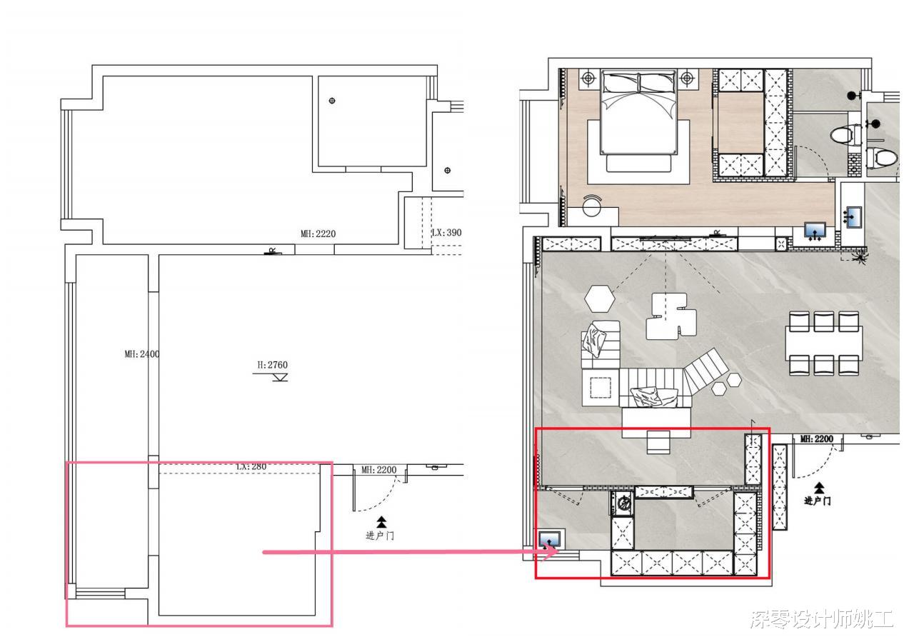
?巧用大横厅优势 , 换来三功能区
这点结合户型图看得更明白 , 136㎡保留原始三间房就完全足够一家三口 , 父母偶尔短住的需求 , 那么大横厅背后也就没必要再隔成小房间 , 或设吧台增添仪式感 , 这些餐厅就能代替 。
如果我家是大横厅 , 也更愿意改成这样 , 实用性是真强大!稍微后推 , 打造成书房+储物间+洗衣房 , 收纳翻倍 , 功能一应俱全 , 这才是咱普通人实实在在的生活幸福感 。
?洗漱台穿墙造端景 , 小”叛逆“惊艳了所有人
要不然别人家怎么能在小区出圈呢 , 洗漱台谁能想到 , 还可以穿墙打造端景 , 提升家里档次啊↓
- 拼多多关键词排名在哪里看?咋提升店铺排名?
- 拼多多选品有红点是什么意思?怎样找到爆款产品?
- 拼多多选品工具软件有哪些?有啥技巧?
- 建议大家:这5种装修已经过时,许多人都不懂,还在花钱买教训!
- 天猫汽车节是什么级别的活动?可以享受到多高折扣吗?
- 淘宝店铺被冻结多久可以恢复?怎么解冻?
- 农村淘宝多少退货率才不算高?什么原因导致退货?
- 哪个跨境电商平台发展前景比较好一点? 哪个平台的外贸订单比较多
- 奥利司他胶囊减肥有效吗?能减多少斤?
- 开都市丽人内衣店投资多少钱 开内衣店是实体店还是网店比较好
特别声明:本站内容均来自网友提供或互联网,仅供参考,请勿用于商业和其他非法用途。如果侵犯了您的权益请与我们联系,我们将在24小时内删除。
