
文章图片

文章图片

文章图片

文章图片

文章图片

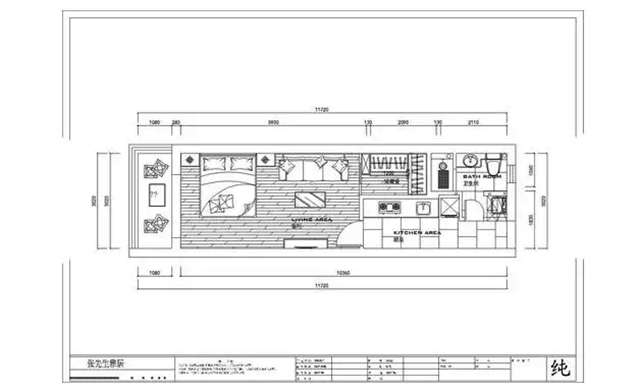
这套50平米的小户型公寓 , 条头糕式的户型结构比较鸡肋 , 导致厨卫空间比较狭窄 , 厅卧空间光线也不强 。 针对这些问题 , 设计师选择将家里的区域重新合理划分 , 把原本的单墙敲掉 , 合并功能区 , 给室内扩容 。
经过设计师的一番合理布局和改变 , 卫生间与厨房处于并排空间 , 进入客厅和卧室的过道也合并到了一起 。
在平面图上能看到 , 卫生间就在入户门的旁边 。 虽然面积不大 , 但是好在规划合理 , 不仅洗手台、淋浴间、坐便器通通都有 , 而且洗衣机还被安排到了里面 , 实在是不容易 。
与过道合并在一起的厨房 , 只能充分利用好这一侧的墙面 , 所以厨房使用了吊柜来增加存储空间 , 墙面上的简易挂钩 , 也节省了占用操作台面的空间 。
客厅和卧室在同一空间 , 简约的色彩和造型 , 是对其材料质感的细致打磨 。
值得一提的是 , 设计师运用了反向设计手法 , 把采光欠缺的弊端作为构成低调灰度的条件 , 为墙面调制了恰到好处的浅咖色 , 带来柔和、温暖的质感 。
沙发旁的书柜移门后隐藏了独立的储藏室 , 那是橱柜外移后腾出的另一部分空间 , 加上厅室里的柜子和搁架 , 可以满足业主收纳、展示个人喜爱的小周边 。
【4.5万装50平一室公寓,苗条的小户型,这样装很实用!】设计师考虑业主独居生活的习惯 , 并没有刻意去划分客厅和卧室 。 但不同空间仍然需要不同的氛围来匹配 , 因此客厅采用了相对复杂的射灯、落地灯局部照明组合 。
卧室上方则没有任何光源 , 所以就在阳台的隔墙上多开了一个小窗 , 让空间脱离的单调和沉闷感 。 阳台处做了个20公分高的地台 , 作为闲暇休息区 。
整齐的实木格子收纳与棕白色的格子床品 , 给空间穿上了朴实、整洁的外衣 , 在阳光下 , 释放出如邻家大男孩般的温暖关怀 。
床头柜上没有太多可放的东西 , 清水配好书即可陶冶身心 。
本文内容来源于网络 , 如有侵权请联系删除 , 谢谢!
- 抖音礼物主播与平台怎么分?如何获取礼物?
- 深圳退休老人一个月养老金1万元,这属于什么水平?
- 资本市场高水平双向开放有序推进 年内北向资金累计净流入428亿元
- 叮咚买菜被曝大裁员 生鲜电商平台现状未来趋势预测分析
- 装修可以全屋用4平方电线吗?我家全用了,感觉很烧钱!
- 父母陪嫁90平婚房,农村公婆却要和我们住一起,我不愿意有错吗
- 拼多多竞拍保证金怎么退?怎么玩?
- 网上放单平台可靠吗?做单靠谱吗?
- 请问各位朋友平时喝的口粮茶是什么茶?
- 刘元春等:全球收入不平等的七大典型事实
特别声明:本站内容均来自网友提供或互联网,仅供参考,请勿用于商业和其他非法用途。如果侵犯了您的权益请与我们联系,我们将在24小时内删除。
