【60平小家住进一家四口, 阳台榻榻米能当一间房, 日子过得有滋有味】

文章图片

文章图片

文章图片

文章图片

文章图片

文章图片

文章图片

文章图片

暂时买不起太大的房子 , 那就先买套小点的 。 结果就买了这套使用面积60平的小户型 。 原本格局只有一室一厅 , 经过改造之后变两房了 , 一家四口也能住下了 。 房子虽然小点 , 不过一家人能在一起就已经很满足了 。 孩子在身边就是好 , 家里头也热闹 , 日子过得有滋有味 。 总体来说装修还是很满意的 , 给大家晒晒!努力奋斗 , 争取早点换个大三房 。
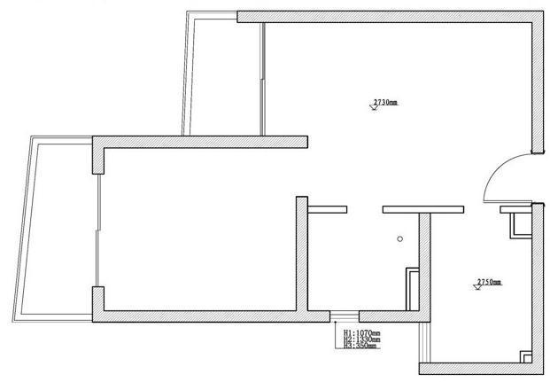
平面户型图 , 改造前后对比 , 效果还是显而易见的 , 阳台榻榻米能当一间房 , 一房变两房 , 一家四口也能住下了 。
客厅很简单 , 买了套L型的米色粗麻沙发 , 靠背比一般沙发要高一些 , 这样坐着舒服 。 沙发墙用壁纸和画装饰 , 小户型空间比较有限 , 所以就没买茶几了 。
餐厅比较小 , 考虑到实用性还是选择做卡座 。 卡座是木工师傅现场测量后做的 , 蛮实用的 。 背景墙贴的文化石 , 效果蛮不错的 。
卡座近距离来个特写 , 在加两把椅子可以坐下 , 六个大人+两位小朋友喔 。 墙上还做了一圈小隔板 , 摆放一些孩子的小玩具 。
把阳台玻璃门拆除之后 , 往客厅里边挪了一些 , 用一个拱型门套与客厅区隔。 门套周边是用的杏仁色墙漆 , 看着蛮舒服的 。
电视墙够简单吧 , 杏仁色墙漆打底 , 买了台60寸的电视 , 还有家庭剧院组 , 可以舒压解劳 , 还是蛮享受的 。
阳台榻榻米 , 改造之后的结果 , 能当一间房 , 晚上睡觉就把两边窗帘拉上 , 保护私密性 。 沿墙窗户做了一排矮柜 , 可以防寒气 , 另一边做了一组高柜 , 使用玻璃柜门 , 比较不会有压迫感 。 平时也可以作为孩子玩耍的地方 。
榻榻米的盖板是可掀起来的 , 用了一对可以承重150KG的气撑 , 这样多了储物空间 , 小户型求之不得 。
唯一的一间房自然留给孩子了 , 尽量让房间宽敞一些 , 留给孩子们更多的玩耍空间 。 所以买的沙发床 , 坐卧两用非常实用 。 此外 , 还准备了两张简易书桌 , 以后孩子写作业好用 。
软装饰品布置之后 , 也越来越有家的样子了 。 儿童房外边生活阳台 , 采光还不错 , 房间内也亮堂很多 。
- 一个平淡无奇的水龙头,如何选择变得更高级?
- 体脂秤说我基础代谢低于正常水平,怎么减脂?
- 124平现代风五室设计,衣帽间使用谷仓门跳色来增加空间的气氛
- 五平分的花娶民圆了局是甚么
- 十两谭平易近国聊斋司令阿湾了局是甚么
- 94平北欧风小户型,飘窗带了沙发和椅子,独特而又实用
- 131平现代风三居室,每一个房子都是一个完美的故事
- 120平米新房,老公坚持不吊顶,不做电视墙,完工后漂亮极了
- 79平现代风二居室时而专注时而放松,就是「家」的魅力
- 一样平常护肤要留意甚么
特别声明:本站内容均来自网友提供或互联网,仅供参考,请勿用于商业和其他非法用途。如果侵犯了您的权益请与我们联系,我们将在24小时内删除。
