18平方米的小蜗居,LOFT装修效果非常吸引人,重点是实用性超强

文章图片
【18平方米的小蜗居,LOFT装修效果非常吸引人,重点是实用性超强】

文章图片

文章图片

这套小蜗居的使用面积仅为18平方米 , 业主想要不放过每一寸空间的利用 , 请了专业的设计师对房子的布局进行改造和装修装饰 , 装修效果出来后让业主的朋友都大吃一惊 , 实在是太好看了 , 而且实用性也非常的高 。
玄关进门后就可以看到整个小居室的空间 , 虽然不大 , 但是视觉效果却一点都不会让你觉得拥挤 , 而且超大的落地玻璃窗让整个小户型都充满了光线 , 而且在各种家具搭配以及木纹硬装的搭配下 , 整个卧室给人一种非常独特的温馨感 。
进门后的左边就是收纳鞋子的小柜子以及一个简易的挂衣区 。
进门后的右边则是一个大型的收纳柜 , 这个柜子的作用很是特别 , 接下去看就知道了 。
走过玄关处 , 就可以看到洗手间 , 洗手间的洗手台和厨房的水槽设计为一块了 , 中间用一块透明的玻璃隔着 , 这样既不会占用地方 , 而且使用起来也是非常方便的 。
经过洗手台就是餐厅和厨房了 , 由于小蜗居的空间很有限 , 设计师索性就把客厅去掉了 , 其实就是整合在了餐厅以及厨房里面 , 开放式的设计非常实用 。
餐厅 , 一张十分简易的木质餐桌 , 两张餐椅 , 就是餐厅 , 餐厅的窗边设计为飘窗 , 窗户的下面就是一个收纳柜 , 上面安装上了沙发 。 这样也可以供客人来了可以坐着休息 。
简易的厨房设计 , 这样的厨房只能做简单的西餐 , 而不能做大菜 。 但是基本能够满足日常的生活需求 。
从这个角度可以看到厨房的后方就是卫生间 。
公共区域虽然没有传统意义上的客厅 , 但是在窗边还设计多一个家庭办公室 , 这样也是非常符合业主工作狂的要求的 。
可以注意到的是办公桌和飘窗下方的收纳柜其实是一整套的定制家具 , 非常实用 。
刚刚上面提到的 , 入门玄关的收纳柜大有用处 , 因为这个收纳柜还是通往阁楼卧室的楼梯 , 非常是实用好看 , 而且安全性能还是不错的 。 卧室在阁楼也保证了一定的隐私 , 你觉得这样的设计你喜欢吗?
楼梯还有黑色不锈钢的水管作为扶手 , 然后楼梯扶手也是一道装饰 , 还能作为摆放相框以及绿植的置物架 。
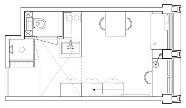
最后看看这套小蜗居的平面设计图 , 大概就能了解整个小蜗居的设计布局 。
齐家小菜提供更多装修资讯 , 喜欢我的朋友记得收藏和关注哦!关注我 , 私信编 , 免费获取《装修一本通》!
- 客厅别再乱装了,据说这才是2022年最流行的装修,漂亮大气!
- 别搞错了,日本玄关真正好用的并非下沉,而是做地台外延25公分
- 家里厨房卫生间利用率低?这样装修让它发挥更大的作用
- 蓝莓自由|上海人注意!轻松实现“蓝莓自由”的地方来了
- 游客|凭72小时核酸证明入园!上海浦江郊野公园恢复开放
- 简约风格3居室,装修设计朴实,高品质的家具搭配,成本12万刚好
- 卫生间都是小飞虫惹人烦?我只做了3件事,整个夏天再也不出现了
- 买的精装房终于等到交房了,进门就傻眼!精装房就这样?
- 生活中看似无用的“蠢设计”,实则暗藏玄机!网友:我不该嫌弃它
- 提拉米苏里面的酒是什么酒
特别声明:本站内容均来自网友提供或互联网,仅供参考,请勿用于商业和其他非法用途。如果侵犯了您的权益请与我们联系,我们将在24小时内删除。
