文章插图
其实还是有个隐藏的小心机
东厢房比西厢房要高一点点
左青龙右白虎
东边代表的是青龙方
俗话说“不怕青龙高万丈 , 就怕白虎撑出头”
青龙方主阳
宜高不宜低 , 宜喧不宜静
如果左方低矮
预示家中男丁之位不正
特别是长子 , 容易失去权威
家中男丁亦难出头、少成就
青龙方相对高一些
表示多贵人相助 , 人气旺

文章插图
西面代表的是白虎方
白虎方高于青龙方为“白虎撑出头”
表示小人当道、小人欺主 , 家中多血光
女主人易患妇科病、婚姻失和

文章插图
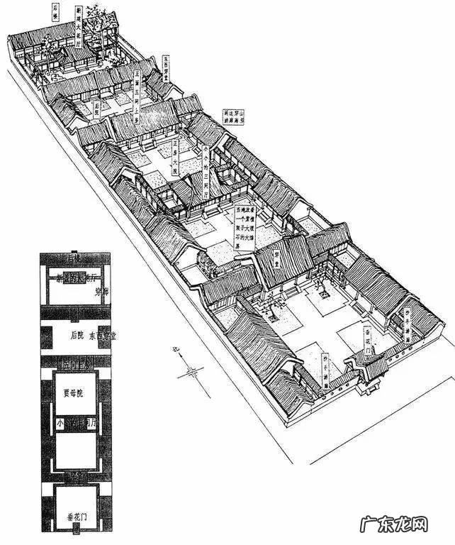
正房是整个住宅中等级最高的建筑
屋顶要高出厢房、耳房一大截

文章插图
【风水中的案台是什么 风水案台是什么意思】正房是一个家的主要中心
会客以及主人的卧室都在这里
正房在北方
左右的西北东北有耳房
对应后天八卦中三个宫位
分别是坎宫、乾宫、艮宫
对应的都是家中的男性
其实起到的所用是权力集中
而南方对应的是倒座房

文章插图
我们再来看看四合院中的案台
作为整个建筑的案台
位置不能太高

文章插图
一般作为客房或者下人居住的房屋
东南角为私塾 , 西南角为厕所
根据主人的身份地位
四合院也可以变出繁简不同的组合方式
一进四合院

文章插图
二进四合院

文章插图
三进四合院

文章插图
五进四合院

文章插图
带花园的五进四合院

文章插图
每一种四合院都
严格按照八卦对应的家庭成员来划分的
长幼有序 , 尊卑有别
四合院让建筑参与到家庭礼制之中
像一只无形的手
聚拢 , 拿捏 , 分散 , 阻隔
在这么一个小的环境中 , 等级次序严格规整
正房——厢房——倒座房
越是重要的人越靠近正房
不重要的人远离 , 完成权力集中

文章插图
其实四合院也是我们人文精神的一张脸
来看看甲骨文中的合

文章插图

文章插图
代表的是向下张开的嘴巴

文章插图
代表的是向上张开的嘴巴
有吃饭的意思
也有围住的意思
发展到篆文

文章插图
- 十大风水宝地 福州三大风水宝地
- 鬼吹灯是北派还是南派 南派风水大师
- 红水河文化 八甫红水河风水
- 床头靠窗户化解方法 门口挂绳子风水
- 中国风水大师排名 城乡大集在哪里
- 可怜焦土 火烧焦土风水
- 屋后种桃树风水好吗 庭院种植桃树的风水
- 一楼风水最好 江苏三湖环绕风水
- 8楼风水 买楼顶层好风水好吗
- 雨打芭蕉是我国传统乐器中的哪一类 雨打芭蕉是我国哪个地方的音乐代表作品之一
特别声明:本站内容均来自网友提供或互联网,仅供参考,请勿用于商业和其他非法用途。如果侵犯了您的权益请与我们联系,我们将在24小时内删除。
