160㎡现代简约,低调灰色+安静蓝色,营造优雅舒适的家

文章图片

文章图片

文章图片

文章图片

文章图片

文章图片

文章图片

文章图片

文章图片

文章图片

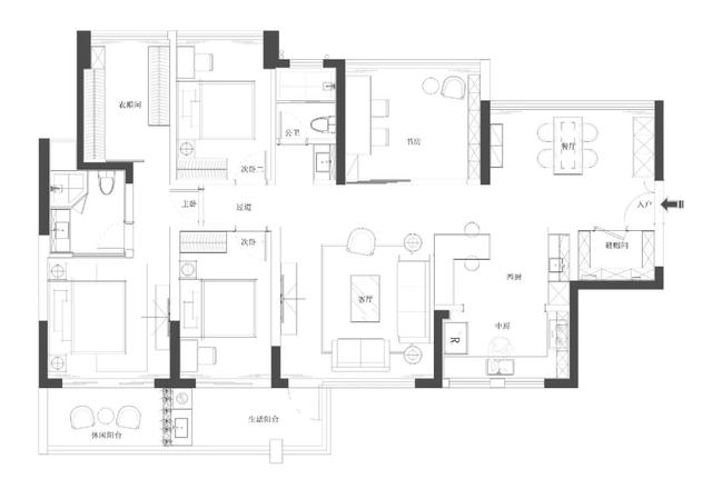
这是一套160平米现代风格装修案例 , 整体空间布置蓝色与灰色的软硬装结合 , 营造出了一个简约舒适而安静优雅的居家氛围 , 让生活充满惬意从容的高级感 。
客厅
▲客厅横厅布局的空间 , 沙发后方就是厨房区域的中岛台 , 整个空间净白与蓝色调的布置搭配 , 在灰色地面空间基础下 , 打造出一个安静舒适的客厅设计 。
▲开放式的厨房在客厅与餐厅之间 , 以中岛台隔开 , 做饭烹饪的同时 , 还能与客餐厅的家人闲谈互动 , 生活更加生动有趣 。
▲灰色皮沙发+黑色小茶几组合 , 灰色地面砖铺上禅意简雅的地毯 , 加入蓝色窗帘搭配 , 使得客厅空间充满现代简约而安静舒适的设计感 。
▲沙发墙靠窗一侧墙面装上木质感的长城板 , 搭配吊灯与射灯的烘托 , 也让角落空间更加有设计质感 。
▲电视墙黑白配+木质搭配 , 壁挂电视机的设计 , 显得现代时尚而简洁大方 。
▲悬空的电视柜 , 以原木抽屉+黑色台面的组合 , 台面上布置蓝白色的摆饰 , 则是为空间增添了几分文艺优雅的气质 。
餐厅
▲餐厅在靠近大门区域 , 灰色地面砖上布置石材台面的餐桌 , 搭配铁艺架+皮艺坐垫的餐椅 , 加上蓝色餐边柜的设计 , 让空间显得安静简约而优雅舒适 。
▲餐厅侧边的落地窗采取百叶帘的设计 , 也让用餐空间明亮大方而又有私密感 。
▲餐桌上的果盘布置 , 餐桌后方的墙面是木饰面+长城板的材质设计 , 布置斗柜+玻璃花瓶与蓝白调的装饰画布置出一个清新文艺而端庄的用餐空间 。
书房
▲书房也是开放式的空间 , 书房内部空间做成抬高的地台设计 , 定制开放书架、摆上休闲沙发椅 , 营造出了一个轻松惬意的阅读空间 。
▲另一侧大白墙的基础 , 装上吊柜书架 , 还有一张成品书桌椅组合 , 长长的书桌可以同时容纳两人使用 , 洁净的装修+黑色端庄的柜体家具 , 让工作阅读空间高级档次 。
- 使用这款现代化厨房家电能让你的生活变得更简单!
- 杭州夫妇的135㎡新家,优雅浪漫的意式轻奢风格,高级感已经藏不住
- 难怪那么多人喜欢简约风格,看完这套106㎡三居室才明白,太治愈
- 老房改造|100㎡“黑+白+红”高冷色系空间、抽象的背景墙太有范
- 他的58㎡小房子,用了23万成本被朋友嗤笑,一进门不想走了!
- 48平方米的“大单间”设计,实木装饰温馨,现代风格好看又实用
- 服装设计师的43㎡单身老房,不睡卧室睡客厅,闺蜜:奇葩少见!
- 120㎡焕发新生,极简生活方式+收纳大法=全屋0杂物
- 丹麦女主的独居生活:66㎡的小家,卫生间比卧室还要大!岁月静好
- 现代风格装修的小公寓,客厅打上酒柜,朋友纷纷说好看且实用
特别声明:本站内容均来自网友提供或互联网,仅供参考,请勿用于商业和其他非法用途。如果侵犯了您的权益请与我们联系,我们将在24小时内删除。
