
文章图片

文章图片

文章图片

文章图片

文章图片

文章图片

文章图片

文章图片

文章图片

文章图片

文章图片

文章图片

文章图片

文章图片

文章图片
“废旧利用、勤俭节约”是我们自古以来的传统美德;比如一些老旧家具 , 经过岁月的沉淀与累积后 , 可能表面老旧 , 与现代风格有点不相吻合 , 很多人通常就会选择丢弃 。 但是只要整体框架完整 , 善于运用这种旧家具 , 可能就会有意想不到的收获 。
就像最近发现的一位上海屋主的家一样 , 摆满二手旧家具、以绿植为伴点缀全屋 , 好美好治愈 。
装修理念
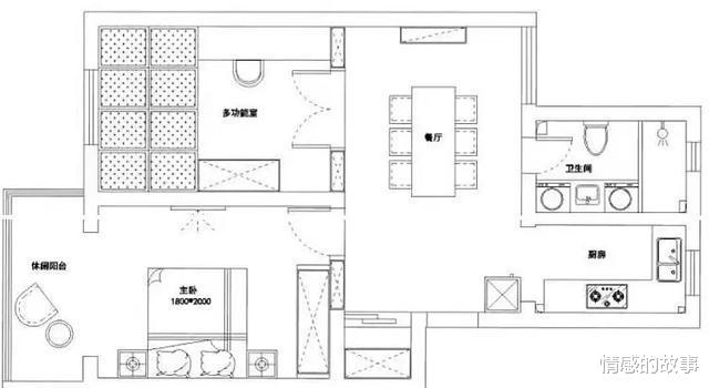
原户型图
屋主@ 沫含是一位热爱生活的80后独居单身姐姐 , 自己经营着一家淘宝店;屋主说她“出生于80后、也热爱80后、对80后的一些人和事物都有着美好回忆;因此在装修新家时也把80后那些年的“记忆”灌注进了她的新家内 。
现户型图
她的房子在上海的一处老式小区内 , 面积75㎡ , 两房一厅户型;装修除了请工人 , 其余都是自己亲力亲为完成的 , 而一些家具是她从二手市场淘来、或是长辈留下的;她说这样不仅环保 , 价格还便宜 。
屋内实景
餐厅
一个人生活 , 对于单身的她来讲 , 没有必要独立的客厅;一张8人位长方形桌子 , 既是餐桌也是办公桌 。 四面大白墙、原木色地板、二手旧木家具、在绿植的点缀下 , 有种“侘寂风”的韵味 , 但是比“侘寂风”色系更明亮 , 更显温馨舒适 。
最近两年来流行的平层吊顶、搭配嵌入式筒灯;餐桌上方两盏吊灯是美式工业复古风的 , 整体搭配说不上是什么风格 , 给人的感觉却格外精致舒适 。
- 看了网友留下3个疑问,才发现墙面冲筋找平后,墙柜更严丝合缝
- 慢生活|注意!上海爱琴海开启夏季主题活动,打造城市露营新体验
- 小红书有哪些不靠谱的美妆配方
- 重点人群|上海全力保障重点企业用工 首场直播带岗来了
- 探视|注意!上海养老机构家属探视出入管理要求调整
- 一位60岁农村阿姨,因“太会布置”而走红,家里舒适得让人羡慕!
- 一旦发现装修工人这样做开槽,你一分钱都不要给,一看就不专业!
- 新房住了1年,发现卧室最好别买这5种床,不实用又浪费空间
- 晒晒我在上海的100㎡学区房,装修花了50万,让人羡慕不已
- 装修买对的,不买贵的!
特别声明:本站内容均来自网友提供或互联网,仅供参考,请勿用于商业和其他非法用途。如果侵犯了您的权益请与我们联系,我们将在24小时内删除。
