
文章图片

文章图片

文章图片

文章图片

文章图片

文章图片

文章图片

文章图片

文章图片
大宅 丨全案 丨设计丨施工丨精装丨 工装
XINJUSHANG WHOLE CASE DESIGN CENTER
● XIN JU SHANG DESIGN ●
见多了华丽璀璨灯红酒绿的城市
便越觉得 , 简单舒适才是能安抚人心的力量
才是可以缓解都市人群生活繁忙与压力的良药
see more gorgeous and bright cities
simple comfort is power
a good medicine for relieving busy life
关于风格
ABOUT STYLE
以独特的审美视觉 , 将怀旧的港式情怀与现代生活需求相结合 。 用强烈的材质对比 , 充满精致的小物件细节点缀 , 一切都是少而精的存在 。
Combining the nostalgic Hong Kong Style feelings with the needs of modern life everything is less and better.
关于空间
________
ABOUT SPACE
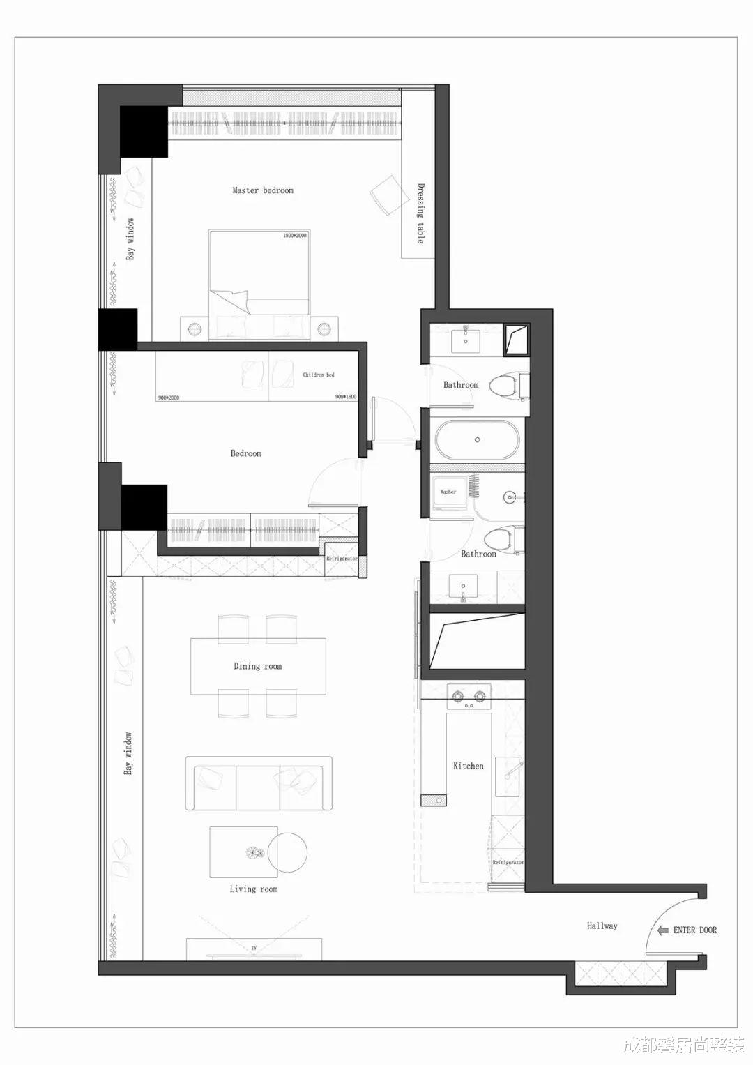
?项目 /Name:川港合作示范园
?面积 / Area:110㎡
?风格 / Style:港式风
?类型 / Type:三居室
【港式风情演绎现代轻奢,新奇与时尚】
业主需求
OWNER REQUIREMENTS
业主是一对从事金融的夫妻 , 热爱生活 , 追求生活品质 , 想要简单安静 , 温馨简约的空间 , 对空间的功能和存储需求很高 。
The owner is a couple engaged in finance. They love life and pursue the quality of life.
LIVING ROOM
___
客厅空间
客厅大面积窗户引进自然光线 , 结合整面墙的立面到顶柜子 , 把原本单一的窗户变成飘窗 , 形成一个休闲功能区 , 衍生衔接窗外的风景 。
Combine the facade of the whole wall to the top cabinet to turn the original single window into a floating window.
白色与灰色
Artistic taste
Balance the color of space combine hardness and softness and quietly reveal elegant artistic taste.
Balancer
space color
白色与灰色的搭配 , 融合温润的原木元素 , 很好的平衡空间色彩 , 刚柔并济 , 悄然流露出高雅的艺术品味 。
RESTUARANT SPACE
___
餐厅空间
人生绝不是一蹴而就的 , 空间也有生命 , 当柔光光影散射穿透空间 , 将落日的余晖揽入怀中 , 与红酒共饮 。
Life is by no means achieved overnight. Space also has life.
以功能为主 , 抛弃不必要的装饰 , 不做太多的材料和颜色堆叠 , 减压空间和时间 , 在低调内敛中感受生活的本质 。
- 白色系现代小别墅,优雅浪漫的风情藏也藏不住
- 客厅应挂什么画,这样选,演绎居室不同的艺术经典
- 在中式设计看尽浮华,体会那一缕韵味风情
- 【鲁班装饰】银河北庭130m2北欧风格 现代风情
- 占地11X13.5米,带车库的异域风情别墅,奢华大气
- 美必须干净,这所现代小别墅完美演绎了这一点
- 她家的港式风格让人眼前一亮,真的很奢华,走进去让人感觉很舒服
- 新中式凉亭为你演绎一处恬淡而惬意的生活场所
- 132㎡装修:以一抹威灵顿蓝,打造美式风情的时尚智能宅
- 杨幂《花儿与少年》生图流出,尽显大长腿,演绎“下身消失穿搭”
特别声明:本站内容均来自网友提供或互联网,仅供参考,请勿用于商业和其他非法用途。如果侵犯了您的权益请与我们联系,我们将在24小时内删除。
