
文章图片

文章图片

文章图片

文章图片

文章图片

文章图片

文章图片

文章图片

文章图片

文章图片

文章图片

文章图片

文章图片
有人说极简风的最高境界 , 就是“家徒四壁”;也有人说“家徒四壁”就是“赤贫风”的一种体现 。 事实上 , 这两种说法都不能很好地诠释 。 而如何定义“家徒四壁” , 其实取决于每个人对空间的定位 , 以及当下的生活方式 。 况且 , “家徒四壁” , 并不等于简单装修 。
像本期带来的这套案例 , 屋主就在空间设计上 , 营造出了一种“家徒四壁”的即视感 。 虽说看起来比较简单 , 但细节处理却非常棒 。 当然 , 也只有入住后 , 才知道这样装修有多爽 , 并且骨子里都透着一抹干净 。
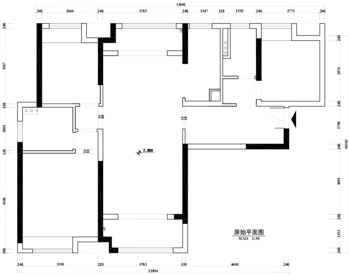
平面结构图【看了她125㎡家,才知道“家徒四壁”有多爽,骨子里透着干净】
本案是一套精装房 , 面积125㎡ , 三室两厅两卫的格局 , 屋主是一对小夫妻 。 由于是初次装修 , 没有什么经验 , 所以在装修过程中 , 也出现了装修工头跑路的情况 。 虽说过程有些曲折 , 也经历了17个月的工期 , 但在新家装修好的那一刻 , 却也都露出了欣慰的笑容 。
对于新家的需求 , 屋主夫妇都希望是简约、干净、有品质的 , 并且十分不喜欢精装房千篇一律的基调 。 因此 , 全屋都做了拆除处理 。
平面方案图
考虑到这是一套精装房 , 原空间规划也比较实用 , 所以在改造时 , 主要以局部优化为主 , 从而尽可能地避免不必要的浪费 , 具体调整如下 。
1、拆掉厨房与过道之间的墙体 , 让空间实现LDK一体化的结构 。
2、主卫生间墙体内退 , 为主卧延伸出一组内嵌式衣柜 。
3、南北阳台分别纳入室内 , 进一步提高空间面积 。
装修前
改造前 , 与我们印象中的精装房差不多 , 地面有波打线拼花 , 顶面有复杂的水晶灯 , 再加上复古的欧式窗帘 , 即便墙面做了留白处理 , 也依然给人一种十分老气、压抑的感受 。 当然 , 也十分不符合当下年轻人的审美 。
- 农村自建房合集,中式风格真的太好看了,在村里更显的独一无二
- 上下床不愧是小户型的救星!她36㎡老破小,直接被“拯救了”
- 70二手房,她简单翻新下入住,一个人的生活过得井井有条!
- 榻榻米只能装卧室?这些地方装个瞬间多出一间房,谁看了都羡慕
- 房子没有阁楼,那就自己造一个,她家的阁楼小窝好有安全感
- 她家97㎡老房改造,坚持客厅不放电视和沙发,实用性只增不减!
- 陈幸同在全运会上战胜奥运会冠军陈梦强势夺冠,她到底有多强
- 她家78㎡三居室,全屋墙面只刷乳胶漆,完工后温馨又耐看!
- 邻居怀孕,让我延迟几个月再装修,我却想让她搬出去住,咋办?
- 花20余万买减肥药7年 她从100斤“减”到200斤
特别声明:本站内容均来自网友提供或互联网,仅供参考,请勿用于商业和其他非法用途。如果侵犯了您的权益请与我们联系,我们将在24小时内删除。
