七度抗震设防,框架结构房龄持久,安全实用又体面

文章图片

文章图片

文章图片

许多人在农村地区为父母建造养老房 。 对于老年人来说 , 无论地板有多高 , 它都只是一种装饰 , 活动空间仅限于一层 。 因此 , 两层的户型是最合适的 ,
室内功能:地下室四房三卫一厅一储藏室 , 首层三房二厅一厨三卫一阳台 , 二层三房二卫一阳台一书房一厅第二套:
一楼可以满足老年人的日常需求 。 门廊、厨房、餐厅、客厅和浴室都很齐全 , 布局设计很方便 。 而二楼为主要休息空间 ,
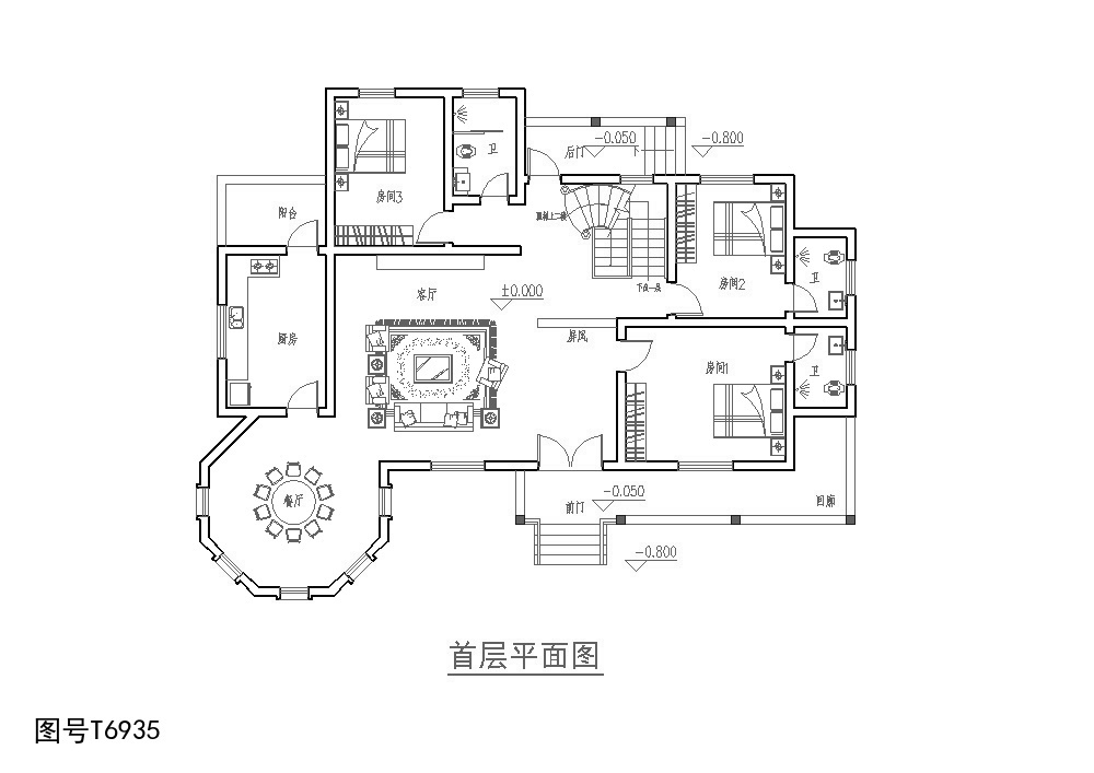
室内功能:首层三房二厅一厨二卫一走廊 , 二层四房四卫四更衣室一厅 , 三层二房二卫二更衣室一厅
第三套:
这是一组非常实用的农村三层建筑别墅 。 为确保村民个人住房的安全 , 该建筑按7度防震 , 并设置构造柱、圈梁和现浇钢筋混凝土屋面 。 由于不同郊区的基础条件不同 , 应根据实际测量确定的接地电阻进行基础施工 。 结合农村实际情况 , 为了提高村民建筑的节能、节材和绿色环保水平 , 满足村民的不同需求 ,
【七度抗震设防,框架结构房龄持久,安全实用又体面】室内功能:首层二房二厅一厨一卫一储藏室 , 二层三房二卫一阳台一衣帽间 , 三层二房二卫一书房一厅二阳台 , 顶层:凉亭、露台
- 佳福雅苑|佳福雅苑3区“不设防”,业主没了安全感
- 水电管道为什么要强制安装抗震支吊架?
- 小区、写字楼里的铝单板雨棚,遮阳挡雨抗震抗压还好看!
- 七度空间有荧光剂吗 怎么辨别七度空间有无荧光剂
- 七度空间卫生巾怎么辨别真假?七度空间真假辨别图片
特别声明:本站内容均来自网友提供或互联网,仅供参考,请勿用于商业和其他非法用途。如果侵犯了您的权益请与我们联系,我们将在24小时内删除。
