
文章图片

文章图片

文章图片

文章图片

文章图片

文章图片

文章图片

文章图片

文章图片

文章图片

文章图片

文章图片

文章图片

文章图片

文章图片
放慢生活的脚步 , 过好眼前的日子 , 这是一个异地的案子 , 屋主是淮南一位女歌手 , 对于家的喜好正如她的个性 , 十分明确 , 喜欢简约的东西 , 但不希望俗套 , 希望家是自然而然的舒适感 , 而不是网红元素的堆积 , 日常这里虽是家 , 但同时也是她创作的灵感来源 。
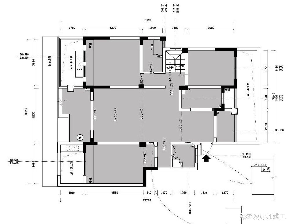
改造前户型图
改造后户型图
房子面积140㎡ , 位于一楼 , 还带有一个小地下室 , 结合量房情况和户型图来看 , 原始状态其实没有太大的诟病 , 全屋基本格局还算十分规整 , 唯一比较麻烦的地方是餐厅 。
进门即是餐厅区域 , 难免会有些尴尬 , 所以我们将厨房墙体全部打通拆除 , 将其做成开放式 , 并将餐厅改成岛台式设计 , 与餐厨连为一体 , 让空间的连贯性变得更强 , 同时也确保了所有的功能动线的缩短 , 更便于日常生活操作 。 不仅如此 , 我们还打通了客厅和阳台的墙体 , 让整个空间的采光变得更加优秀 。
玄关
为了减轻视觉上的笨重与压抑感 , 在进门玄关处 , 并没有做过多的装饰 , 仅仅用一幅简约的装饰画来迎合着整个空间的基调 。
装饰画的图案选择的也十分巧思 , 狭长的走廊 , 但从视觉上 , 也能起到一定的延伸作用 。
▲量房图
▲木工阶段
▲实景落地
进门左手边 , 细心的安置了一个小巧换鞋凳 , 在换鞋凳旁边 , 是一整排到顶的无把手隐形储物柜 , 肉眼可见的收纳能力 , Max!
- 入住新房后,没事就爱捯饬家里,晒晒我的140平三居室!
- 140平美式四居室,将儿童房、主卧和老房扩大,更实用
- 日本95后小姐姐的25㎡公寓,绝不敷衍生活,小巧简单有“仙气”
- 228㎡现代简约,净白墙面+木饰面,满屋简约舒适感
- 产后如何快速瘦身?过来人分享一下吧,如何从产后140斤,瘦到98斤呢?
- 200㎡现代轻奢风,奢而不华,简而不凡!
- 200㎡法式风设计,融于现代空间里的古典优雅
- 100㎡两室婚房,无玄关造一个玄关
- 拒绝\过度装修\,148㎡的家不豪华,却是很多家庭的榜样
- 装修案例 | 132㎡法式复古风情,夫妻2人演绎一场永不褪色的日常浪漫
特别声明:本站内容均来自网友提供或互联网,仅供参考,请勿用于商业和其他非法用途。如果侵犯了您的权益请与我们联系,我们将在24小时内删除。
