最新!中铁一局秦汉总部基地项目,秦汉新盘中铁·铂樾设计方案公示!

文章图片

文章图片

文章图片

今年2月 , 陕西中铁一局正方天域置业有限公司在秦汉新城源北板块摘得1宗住宅用地和1宗商服用地 , 并决定在这里落地的中铁一局秦汉新城总部基地以及配套住宅项目 。
随后地块案名正式公布:“中铁一局集团 , 以匠心和鸣时代热土聚焦国际视野 , 立于价值之巅住宅小区冠以中铁·铂樾之名启幕人居新形态 , 总部办公基地冠以中铁·新视界之名传承时代新思维 。 ”
7月25日 , 秦汉新城官网发布了这两个项目的设计方案公示 , 意味着秦汉新城又迎来一个纯新盘 。
01、中铁铂樾【最新!中铁一局秦汉总部基地项目,秦汉新盘中铁·铂樾设计方案公示!】中铁铂樾项目位于西咸新区秦汉新城汉风汉书一路以西 , 陈平街以北 , 张良路以南 。 项目规划净用地面46905.98㎡ , 总建筑面积169692.71㎡ , 主要建设住宅及相关配套设施等 。
总平面示意图
根据规划公示信息 , 该项目共规划了13栋楼 , 包括12栋11~17层的小高层 , 1栋2F的公建配套 。 共计规划了902户 , 机动车停车位为1645个 , 车位配比为1:1.82 , 容积率2.5 , 绿地率35% 。 小区内部规划了小型多功能运动场、室外综合健身、老年人活动及儿童活动场地 , 小区大门两侧端户首层为商业、配套用房 。
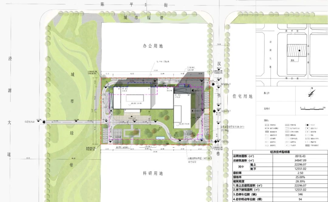
02、中铁新视界中铁新视界大厦项目位于西咸新区秦汉新城塬北片区泾渭大道以东 , 陈平路以南 , 韩信路以北 。 规划净用地面积8918.43㎡ , 总建筑面积34847.09㎡ , 主要建设办公及附属配套建筑等 。
根据规划公示信息 , 该项目最高为16层 , 总停车位为346个 , 容积率2.5 , 绿地率25% 。 地块北侧为办公用地 , 南侧为科研用地 , 西侧为城市绿带 。
总平面示意图
03
从这两个项目项目所处的位置来看 , 位于秦汉新城重点发展的塬北综合服务区 , 板块内引进陕西省两个重量级项目落地、陕西省人民医院西咸院区(陕西省西咸新区人民医院)、空军军医大学(第四军医大)新校区 。
年初 , 随着萧何路学校、秦韵小学的规划建设使得教育配套逐步完善 , 总建面11.92万㎡集酒店、办公、商业于一体的大型商业综合体秦汉樾园项目填补了商业上的空缺 。 可以看出 , 板块内的教育、医疗、商业等配套 , 正在逐步兑现之中 , 待几年后 , 区域内的配套将会更加完善 。
目前 , 区域内除了早期开发的恒大文旅城、绿地格林公馆、中粮壹号院之外 , 还有中天未来玥在售 , 紫薇越秀·馨樾府、南飞鸿云境源起、中国铁建创域城等项目待售 , 以及星空华文和近期刚摘地的西部投资等地块储备 。
- 一套松木书桌导致甲醛超标?急坏了初中生的妈妈,可真相呢
- 抖音企业服务中心怎么开抖音小店?方法是什么?
- 行走中的风景:施恩峡谷大冒险 北纬30°的自然馈赠
- 千牛权益管理有什么?千牛权益中心在哪里?
- 抖音企业服务中心关闭会不会影响开直播流量?
- 教育部继续支持以中外合作办学等方式缓解疫情影响下我学生出国学习困难
- 强烈建议:中伏少吃肥肉,多吃“酸”,开胃助消化,健康一整夏
- 国庆节|准备好了吗?中秋节国庆节放假通知来了!
- 139平混搭风三居室,入装饰主义元素,简约中带有秩序的美感
- 听说这间中式豪宅最符合恢弘大气的北方特色
特别声明:本站内容均来自网友提供或互联网,仅供参考,请勿用于商业和其他非法用途。如果侵犯了您的权益请与我们联系,我们将在24小时内删除。
