
文章图片

文章图片

文章图片

文章图片

文章图片

文章图片

文章图片

文章图片

文章图片

装修风格千千万 , 唯有简简单单最好看 。
现在都很流行家徒四壁“穷装风” , 什么造型都不做 。 但今日精选案例的女主@小妖怪觉得 , 装修了一遍的家 , 还是应该拥有一些简单的造型的 , 只要空间干净干练就好 。 将自己家装成了像办公室又像酒店的风格 , 有的朋友会觉得这样的风格偏硬朗了一些 , 但小编觉得还是很高级的 。 简单大方 , 又不失家的温馨感 , 是个很不错的新家 。
下面就和我一起来看看这个中性风格的新家 , 相信能给你带去不一样的装修灵感 。
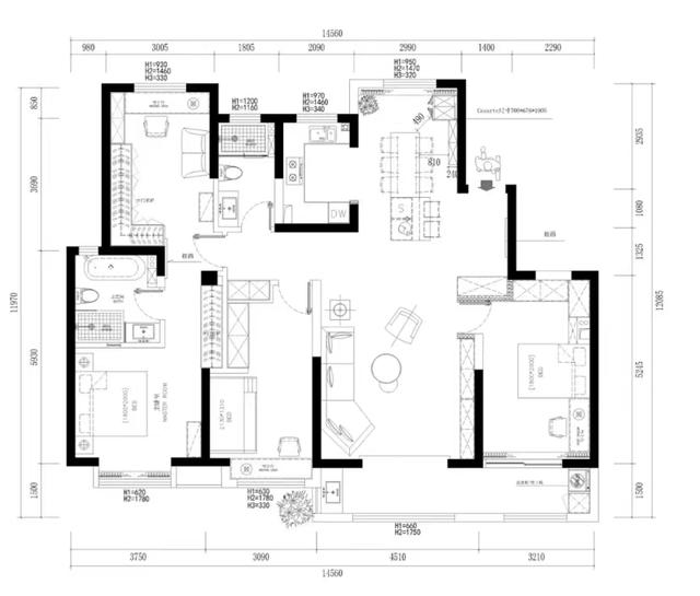
【看了他家172㎡的房才知道什么叫高雅,全屋没有一丝俗气,太美了】房屋信息
建面172㎡ ,套内140㎡ , 一梯一户 , 四室两厅三卫 , 改为三室 , 做了一个套房 , 常住人口是一家三口 。
为了让房子更舒适一些 , 对房子做了一些布局的调整:
1. 拆除厨房的推拉门 , 将厨房改造成半开放式的状态 , 让厨房可以更通透 。
2. 餐厅与阳台打通后 , 设计岛台+长条餐桌的组合 , 让餐厅可以更实用 。
3. 客厅与阳台之间的推拉门也拆除掉 , 将两个空间连在一起 , 让空间更有延伸感 。
4. 舍弃一个小卧室 , 改造成多功能房 , 既能满足收纳 , 又能做琴房 。
玄关
墙面使用欧松板先打底 , 再贴上木饰面 , 做的是无缝拼接 , 留的是自然缝 。 搭配一根白色的线性灯带 , 很有科技感 。 地面地砖是亮面的 , 反光后 , 与墙面灯带形成延伸 , 很显层高 。
拆除厨房的侧墙 , 挪出一点点的厚度做了一个嵌入式的鞋柜 , 柜门选了深咖啡色 , 和墙面的木饰面非常搭 , 又和墙面不是同一个颜色 , 形成差异化 。
餐厅
没有选择成品的餐边柜 , 而是选择了全屋定制的柜子 , 中间与钢柜结合 , 这样可以更好地体现出一点点高级感 。
中岛岛台 , 建议餐厅空间足够的朋友都可以做一个 ,俗话说“民以食为天”吃饭可不能怠慢 。
中岛台与餐桌连接 , 即可备菜摆盘 , 还可以充当延长餐桌 。 木纹与岩板纹路结合 , 用暗色烘托一顿可口的晚餐 。
厨房
厨房也设计深色系 , 白色的台面 , 搭配深灰色的橱柜 , 隐形把手的设计 , 让柜门的表面能保持最大的平整 , 避免一些不必要磕碰的同时 , 又能显得很高级 。
- 看了她独居的89㎡家,才发现简约也很舒适,自己家也要这样装
- 第一次去朋友家,进门就看到他家的客厅设计太漂亮,好想照搬回家
- 新房终于装修好了,简单实用,老婆都忍不住天天去看了!
- 客厅到底要不要茶几?看了她130㎡家后,我算是真正明白了
- 如此惊艳绝伦的中式风格,谁看了不叫一声好
- 看了那么多的家装,发现很多家庭的窗户都存在3个毛病,太扎心了
- 难怪很多人用地毯“代替”茶几!看了她家后,才知道有多舒适
- 看了南京80后夫妻的家,才懂什么是颜值和实用并存,晒给大家看看
- 从窄小阴暗到明亮舒适,看了伦敦夫妻的老房改造,被一楼吸引住了
- 晒晒我家硬装花了十一万,朋友亲戚看了都不信,实在太漂亮了!
特别声明:本站内容均来自网友提供或互联网,仅供参考,请勿用于商业和其他非法用途。如果侵犯了您的权益请与我们联系,我们将在24小时内删除。
