
文章图片
【122㎡美式混搭风,开放式书房+钢琴房,灰色调凸显温暖和浪漫!】

文章图片

文章图片

文章图片

文章图片

文章图片

文章图片

文章图片

文章图片
莫妮卡对瑞秋说:“欢迎来到现实世界 , 它糟糕透了 , 但你会喜欢的” 。 世界上的事情不如意十有八九 , 所以我们有一颗温暖且坚定的心尤为难得 。
今天小编分享的这个案例是122平米美式风格 , 这个”家”是屋主能够放下所有戒备的地方 , 就算经历了很多事情 , 也会沉淀自己 , 让自己变得更好的居所 。
▲ 原始户型图
存在缺陷:
1. 餐厅显得过小 。
2. 按照原来的动线进入每个空间 , 会使得过道狭长 。
3. 客厅空间被老人房 , 玄关 , 过道支配 , 空间感不够 。
4. 主卧的承重墙和卫生间的格局造成空间不必要的浪费 。
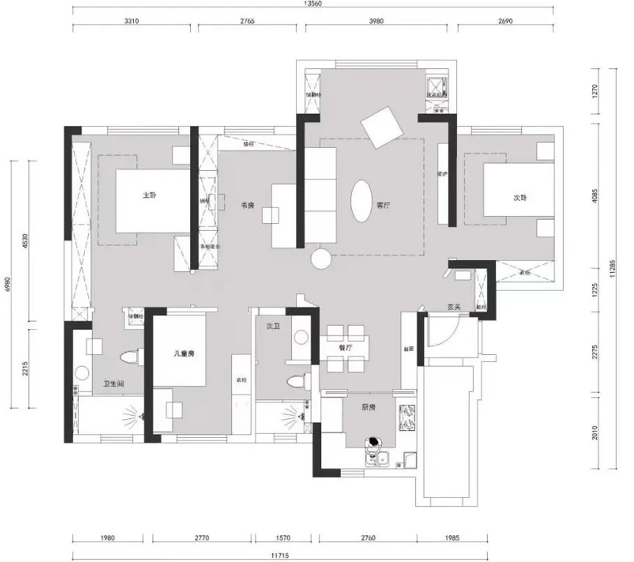
▲平面布局图
设计策略:
1. 格局上在玄关和过道的地方做了斜墙 , 弱化了原本餐厅的短窄 , 喇叭口的视角加长餐厅的区域 。
2. 增加了多个门洞 , 加上开放式书房 , 让原本通常的过道变得有趣起来 。
3. 把阳台打通之后 , 会使得客厅中心往阳台扩展 , 使得空间更大 。
4. 主卧利用转角的地方 , 我们做了对称的收纳柜 , 床头朝向改动 , 床尾一整排衣柜整体性更好 。
设计理念:
1. 我们在设计色调上运用不同层次的灰调 , 也是一种中性且温柔的色调 , 符合成年人的高级审美 。
2. 材质上 , 木制擦色 , 墙板混油 , 石材台面 , 以及特色的灯具 , 整体打造了美式混搭的感觉 。
3. 在灯光设计中我们运用了一些壁灯 , 落地灯 , 来达到一个氛围照明 , 刻意让空间可以暗下来 , 使人放松 。
玄关
过道弱化 , 采用了门洞的形式 , 这样以此相互呼应 , 让每一个空间贯穿起来 , 从入户玄关看向主卧 , 从主卧看向书房和卧室 , 每一个门洞的视角都不同 。
客厅
打开家门 , 映入眼前的是灰色调空间+木制擦色 , 墙板混油 , 石材台面 , 以及特色的灯具整体打造了美式混搭的感觉 , 营造备显温柔的一种氛围感 。
客餐厅一体化 , 三人沙发+单人椅、茶几 , 形成围合布局 , 回到家吃完晚餐和家人一起坐在客厅聊聊天 , 陪孩子看看书 , 一起打打闹闹 , 还原生活本真 。
设计之初 , 屋主强烈要求不要电视功能 , 因此采用了墙板和壁炉的形式 , 为空间增添了立体的效果 。
- 109㎡现代简约风,满足你对现代家居生活的全部向往!
- 132平美式三房,第一眼便心动了,客厅高级感十足,全屋太漂亮!
- 旧房改造翻新丨 现代风格80㎡ · 不一样的优雅!
- 【鲁班装饰】大城小院230㎡现代简约风格,偶然
- 【鲁班装饰】紫鸢堡186㎡新中式风格,素言
- 糖果色美式装修,满足萌妹子的少女心
- 96㎡两室新房,自住简装漂亮极了,尤其阳台让人羡慕,忍不住晒晒
- 45㎡小家是紧凑还是压抑?轻松搞定两房两厅,蜗居也可以很幸福
- 45㎡小家是紧凑还是压抑?轻松搞定两房两厅,蜗居也可以很幸福
- 不服不行,这套130㎡三居室,家有俩娃,却收拾得如此干净整洁!
特别声明:本站内容均来自网友提供或互联网,仅供参考,请勿用于商业和其他非法用途。如果侵犯了您的权益请与我们联系,我们将在24小时内删除。
