
文章图片

文章图片

业主需求:现代简约风格设计理念:强调功能性设计 , 线条简约流畅 , 色彩对比强烈 , 这是现代风格家具的特点 。 大量使用钢化玻璃、不锈钢等新型材料作为辅材 , 也是现代风格家具的常见装饰手法 , 能给人带来前卫、不受拘束的感觉 。 由于线条简单、装饰元素少 , 现代风格的家具需要完美的软装配合 , 才能显示出美感 。 例如沙发需要靠垫、餐桌需要餐桌布、床需要窗帘和床单陪衬 , 软装到位是现代风格家具装饰的关键 。
现代风格的居室重视个性和创造性的表现 , 即不主张追求高档豪华 , 而着力表现区别于其他住宅的东西 。
按照主人的个人喜好进行设计的个性化的功能空间 , 表现出与众不同的效果 。
力求表现出一种完全区别于传统风格的高度技术的室内空间气氛 , 通过特殊的处理手法以及精细的施工工艺来达到要求 。 更注重会客、餐饮、学习、睡眠等功能空间的逻辑关系 , 通过家具、吊顶、地面材料、陈列品甚至光线的变化来表达不同功能空间的划分 。
现代简约风格不仅可以时尚 , 也可以装修设计出无限温馨的舒适感 。 上面的现代简约风格客厅 , 给人视觉的、精神的享受 。 灰色的沙发、木制的茶几 , 完美地将时尚与古典融合 。 室内融合一个看起来简单的角落设计 , 其实都凝结着设计师的独具匠心 , 既美观又实用 。
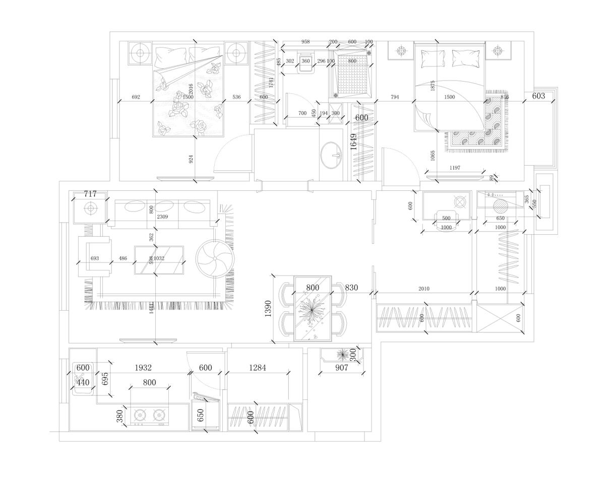
【73平现代风二居室,线条简约流畅,色彩对比强烈,功能性强】【户型图】本户型有所改动 。 户型南北通透 , 温馨舒适
- 95后选择的混搭风,不止追求视觉效果,更多的是舒适!!
- 125平新房,装修花38万太值了,全屋漂亮上档次,尤其是客厅!
- 行走中的风景:醉美西湖夏日行 映日荷花别样红
- 两层新中式风格,造价仅30W,就可以在老家拥有别墅
- 164平现代四居室,切割撕裂后又将其揉合平衡是趣味所在
- 自流平+地坪漆,是哪个大聪明想出来的方法啊?
- 当初图好看,入住才知“不中用”!跟风的5个设计,真想重新来过
- 120㎡南北通透的大房子,入户正对主卧,拆墙安了屏风完美化解!
- 曾在农村风头盖过瓷砖的水磨石,为何现在一步步的走向绝境,难以恢复往日的光辉
- 149㎡法式轻奢风格,线条与色彩融合,轻奢好浪漫
特别声明:本站内容均来自网友提供或互联网,仅供参考,请勿用于商业和其他非法用途。如果侵犯了您的权益请与我们联系,我们将在24小时内删除。
