
文章图片

文章图片

文章图片

文章图片

文章图片

文章图片

文章图片

文章图片

建筑面积119平 , 使用面积89平 , 总造价30万 , 项目坐标:长沙 。 本案原格局硬伤多 , 处处都显狭小闭塞 , 经过与业主多次沟通讨论 , 抓住“多收纳” , “少装饰”的重点 , 对房子的布局进行优化 , 做大量柜子 。 下面就和小编一起来看看这个家吧 , 希望大家喜欢~
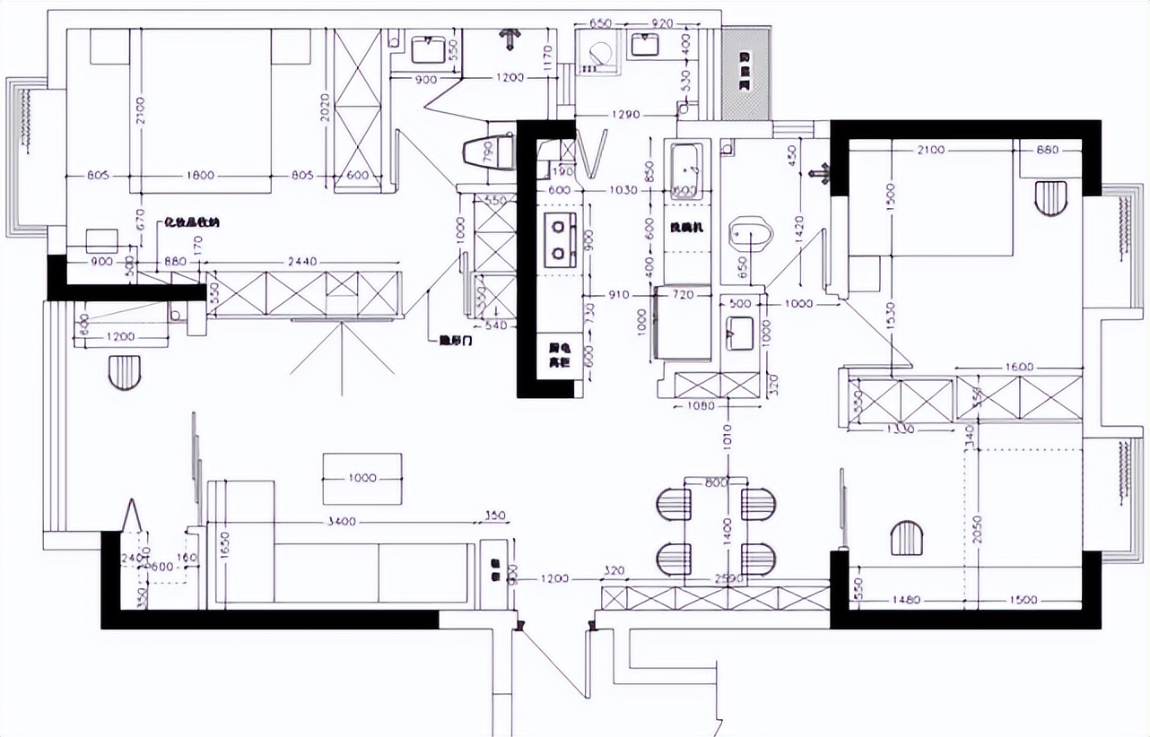
▲ 平面布置图
▲ 原本进门无玄关 , 改造后入户左侧放成品鞋柜 , 右边一组高柜作为收纳补充
▲ 客厅纳入阳台 , 获得开阔视野与充足采光 , 无主灯设计简洁不影响层高
▲ 灰色简约款沙发搭配白墙 , 麻编地毯的色彩与装饰画形成呼应 , 增加些许暖色调
▲ 客厅电视背景墙的隐形门后面是主卧 , 背景墙右侧的展示柜
▲ 阳台作休闲办公区 , 另一侧增加一个储物间
▲ 客厅望向餐厅视角
▲ 餐厅 , 原木餐桌一边靠近柜体摆放 , 餐椅加长凳更实用 , 这样过道足够宽敞 , 左侧又可增加收纳置物柜
【119平简约原木色系三室两卫,抓住“多收纳”,“少装饰”的重点】
▲ 餐厅沿墙做一组餐边柜 , 白色的柜子与墙面一体 , 弱化存在感
▲ 餐区望向客厅、阳台
▲ 厨房 , 向公卫借空间增加料理台面和橱柜 , 打掉与生活阳台之间的门窗 , 增加采光面积
▲ 客卫干湿分离 , 提高使用效率
▲ 书房延续原木日式风 , 这里平时作为业主的游戏区使用 , 偶尔客人小住的时候 , 可以转换为客房
▲ 主卧 , 地板和家具都是以原木为主 , 大白墙顶造型简洁清爽 , 选择点光源取代主灯
▲ 床头壁灯营造
▲ 床侧和床尾的收纳系统满足卧室储物需求 , 让房间更加整洁
▲ 主卫 , 灰色地砖搭配水泥灰墙砖 , 原木与大理石纹的台盆柜底部架空 , 淋浴区导流槽设计 , 黑色五金彰显个性
- 120平三室两厅,头一次见这么实用,还上档次的电视墙,羡慕极了
- 120㎡黑白灰简约风格,再加以原木搭配,给你一个佛系的家居生活
- 90平舍去一个房间做衣帽间,十分喜爱小浪漫的美式风
- 高级灰简约风装修,融入经典装修元素,三居室美翻了
- 开间仅7.3米的自建房,外观简约大气,这个设计如何
- 装修是一门遗憾的艺术:我用这些“平替”小物,弥补了许多不如意
- 132平现代简约风三居室,给家人营造一个安全温暖的居家环境
- 174平美式四居室气质契合清新精致,客厅观感处于极富动态
- 92平现代风二居室带来的归属感,就是自己喜欢的家的样子
- 92平北欧三居室,慵懒随性又高颜值,腔调十足!
特别声明:本站内容均来自网友提供或互联网,仅供参考,请勿用于商业和其他非法用途。如果侵犯了您的权益请与我们联系,我们将在24小时内删除。
