同样是60㎡,我家拥挤不堪,她家却两室两厅还带衣帽间,凭啥?

文章图片

文章图片

文章图片

文章图片

文章图片

文章图片

文章图片

文章图片

文章图片

如何“榨干”每一寸空间 , 仿佛是小户型装修永恒的主题 。
看了她家 , 才发现我低估了60㎡小户型的潜力!
本期女主在这方面 , 就颇有心得 。 她的这套房子 , 虽然只有60㎡ , 但功能区和收纳空间都很丰富 , 两室两厅还带一个衣帽间 , 听起来就让人羡慕!
妥妥就是 , 小空间装下了大能量啊!话不多说 , 赶紧来一睹为快吧!
▲装修实拍图
//户型分析&屋主需求//
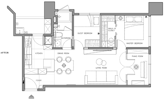
①整屋套内面积是60㎡ , 格局方正 , 户型布局没有太大的缺陷 。
②厨房、卫生间的面积都很小 , 日常使用会有些局促感 。
③客餐厅是一个狭长的空间 , 面宽窄、进深长 。
④屋主希望能在家里增加衣帽间和休闲阳台的配置 , 以丰富功能性 。
▲户型平面图
//设计亮点//
①拆除厨房两侧的非承重墙 , 做开放式餐厨布局 , 并在厨房和玄关之间做储物高柜 。
②借用部分客厅靠窗空间 , 隔出休闲阳台 , 并用法式对开玻璃门做隔断 。
③把主卧隔墙向次卧内推 , 以腾出一部分空间定制独立衣帽间 。
④将厨房旁边的小阳台改造为家政间 , 安排洗衣台、洗烘两件套和电动晾衣架 。
▲装修平面图
玄关
房子虽然小 , 但也有独立玄关 。
在原户型中 , 入户和厨房之间有一道非承重墙 , 女主直接把这面墙拆除了 , 并用顶天立地的储物高柜来代替 , 大大提升了入户区域的空间利用率 。
▲玄关实拍图
柜子的深度约40公分 , 比常规的衣柜要窄一些 。 白色的柜体搭配法式柜门 , 点缀纯铜拉手 , 精致感不言而喻 。
玄关的吊顶 , 做了经典法式雕花石膏线造型 , 修饰了横梁和转角 , 营造出回家的仪式感 。
▲玄关实拍图
餐厨
深灰色的大理石地砖 , 从玄关延伸至餐厨 , 与客厅的木地板完美衔接 。
原厨房的面积不足5㎡ , 空间昏暗狭小 。 为了缓解缺陷 , 女主把厨房能拆的墙都砸掉了 , 并做了开放式餐厨设计 。
▲厨房实拍图
改造以后的厨房 , 做了L型布局 , 合理划分“洗切炒”三区 。
- 25㎡迷你“漂流屋”,1室1厅空间逼仄,却被布置得超温馨
- 80㎡美式风新房,小户型的逆袭之路,大气又不失格调!
- 55㎡北欧风案例, 软装配色清新有活力,让人百看不厌!
- 86㎡的小户型,设计师将日式和北欧混搭在了一起,满足业主的小喜好!
- 96㎡极简风格,无彩色空间+乐高收纳柜,内敛的居家氛围!
- 140㎡黑白灰木简约三室,合理利用承重墙
- 140㎡黑白灰木简约三室,合理利用承重墙
- 『森林半岛140㎡』当下最流行的极简风设计,一个字“绝”
- 这才是“神设计”!48㎡,三室两厅两卫,还有超多储物,佩服
- 装修结束两个月,说说我家装修时最后悔的15件事,你可别再入坑了
特别声明:本站内容均来自网友提供或互联网,仅供参考,请勿用于商业和其他非法用途。如果侵犯了您的权益请与我们联系,我们将在24小时内删除。
