120平混搭风简欧风与现代风的碰撞,构建奢华而雅致的生活环境

文章图片
【120平混搭风简欧风与现代风的碰撞,构建奢华而雅致的生活环境】

文章图片

能够拥有一个温馨舒适的家是每个人的心愿 , 一个家庭的装修效果跟装修风格的选择是脱不开干系的 。 将120平米的三居室 , 用混搭的风格进行装修 , 效果究竟如何呢?赶快跟小编来了解一下吧 。
简欧风格与现代的碰撞成为经典 , 与玫瑰金线条独有的魅力相得益彰 。
设想栖居奢华而雅致的生活方式 , 构建出一幅现代都市的情景 。
本案追寻沉稳雅致的高品质生活 , 巧用欧式经典元素 , 却不过度繁复华丽 。
在家具与配饰选择上较为细腻 , 用刻意的手法呈现自然和雅致
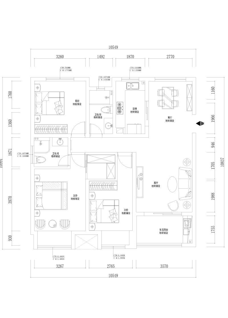
整体户型方正 , 南北通透 , 活动区域开阔 , 居住舒适度高
- 熟人装修房子就是好,120平新家熟人装修才花十万,省心又省钱!
- 120平装修花26万,我特满意,婆婆倒不乐意了,说装贵了!
- 熟人装修新房中,120平全包8万,看到吊顶我当场就翻脸了!
- 花光所有积蓄,还负债24万买的120平房子,大家看看值吗?
- 120m2现代质感小三房:酷中带暖,每个角落都是细节!
- 玻璃砖、复古摩登:这个120m2北欧混搭风,收纳翻番还开阔明亮!
- 【鲁班装饰】雨林时光120㎡现代风格,衍界
- 120平美式风三居室,突出木质本身的特点简单又不失大气
- 97平混搭风二居室全屋基调灰白,融合美式优雅与现代时尚高级耐看
- 62㎡三居室混搭风,精致不拥挤,这个设计真的太赞了!
特别声明:本站内容均来自网友提供或互联网,仅供参考,请勿用于商业和其他非法用途。如果侵犯了您的权益请与我们联系,我们将在24小时内删除。
