农村自建房,什么样的房子让人眼前一亮?自然是现代别墅 。很多朋友对于现代风别墅想建又敢建 。简约的造型,宽阔的空间,潮流的设计等等,无不吸引着我们的眼球 。可是过于开放的造型在农村又不敢建,安全和隐私难以保障!今天便为大家分享一套三层带车库露台的现代风 。

文章插图
建筑面积:502.8㎡
占地面积:189.8㎡
建筑尺寸:22.1m×11.4m
建筑结构:框架结构
参考造价:61万(室内装修费用另计)

文章插图

文章插图

文章插图

文章插图

文章插图
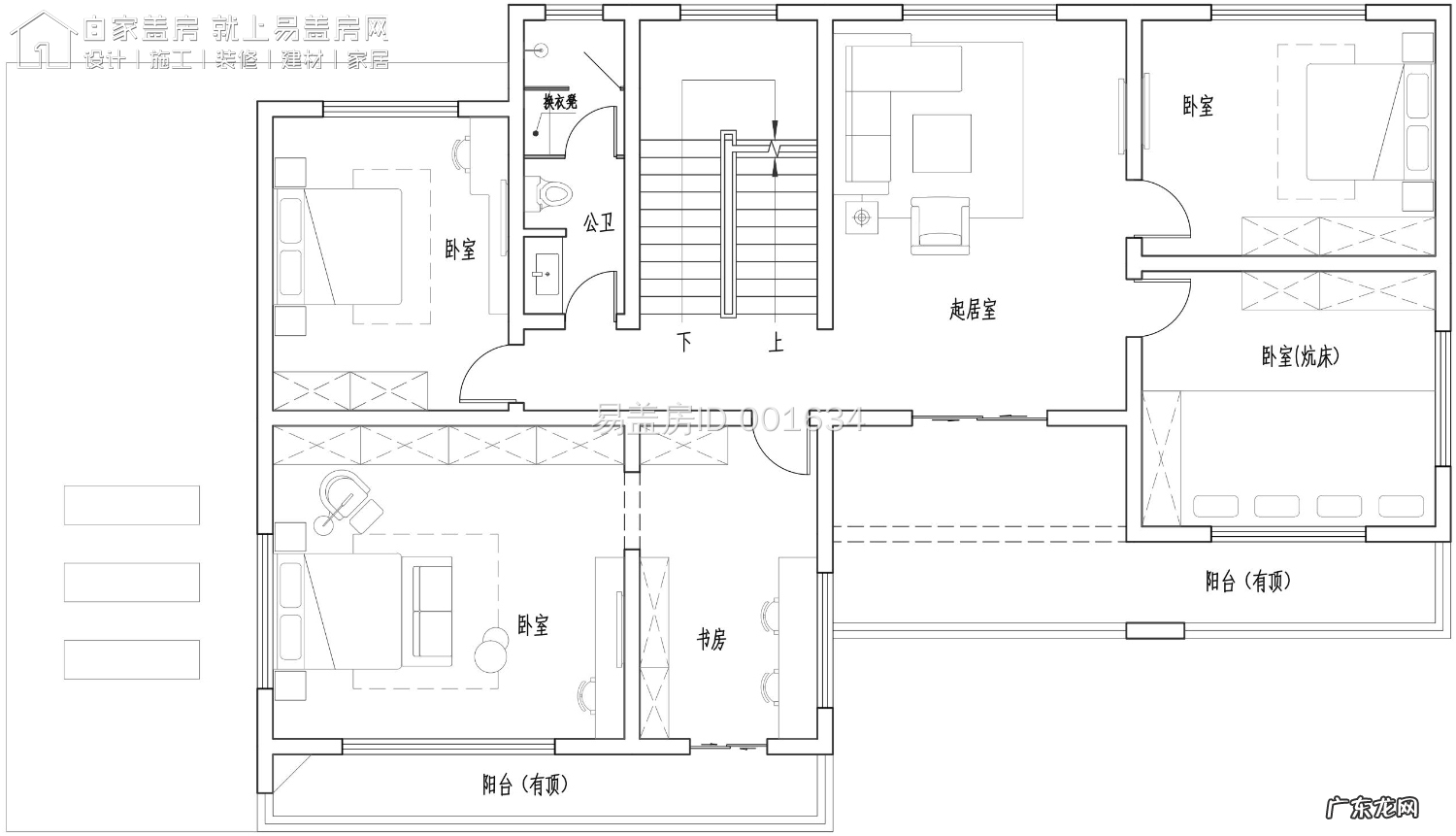
平面方案图
一栋真正舒适的别墅,并不是室内卧室越多越好,而是合理布置,适当安排,这样才能使别墅不只是居住,更是一种享受 。
超大的堂屋待客空间更能唤醒内心深处对于新家的期盼 。
客厅加设落地窗,室内明亮宽敞,会客休闲绝佳场所 。
一层设计老人房,出门就是卫生间,提供方便使用 。

文章插图
房屋南立面多采用玻璃元素,增加别墅时尚感的同时,使得室内与室外形成一个完美的过渡,让家内外的景色融为一体,互相映衬 。
4间卧室,南侧卧室配阳台,1间书房 。

文章插图
露台,这是一栋美墅不可或缺的地方,若是能搭配屋顶花园更是锦上添花 。想着在晴好的天,在露台这里摆放躺椅晒晒日光浴,或是一杯咖啡享受自在生活,时间缓缓流淌,生活不紧不慢刚刚好 。

文章插图
【有落地窗有走廊大露台,农村盖个三层现代风别墅,漂亮又有面子 农村走廊房子图片大全】
- 农村自建房大门到底朝哪建风水才好?村里有钱人家都是这么做的 农村建房朝向风水
- 表达秋天伤感唯美句子 描写秋天句子伤感
- 商铺赠予与卖买税费有什么区别?
- 新房和二手房哪个划算
- 在农村,清明节都有什么习俗?
- 有哪些描写春天的诗句美文?
- 有深度的情话语录
- 美国有几个航母编队
- 七十周年国庆有多少彩车
- 中国航母有几艘下水了
特别声明:本站内容均来自网友提供或互联网,仅供参考,请勿用于商业和其他非法用途。如果侵犯了您的权益请与我们联系,我们将在24小时内删除。
