用现代手艺改造老房子,享受阁楼里的精彩生活,美观又实用

文章图片

文章图片

文章图片

文章图片

文章图片

文章图片

文章图片

用现代手艺改造老房子 , 享受阁楼里的精彩生活 , 美观又实用
在上海有这么一些老房子 , 不仅是年代久远的古建筑 , 还是文化保护单位 。 所以对于这样的房子在改造过程中需要格外注意 , 不仅要考虑整体的布局 , 还要让老房子更加适应现代生活 。
房屋户型:复式
房屋面积:300平方米
装修预算:50万
所在城市:上海
主要建材:实木 , 理石
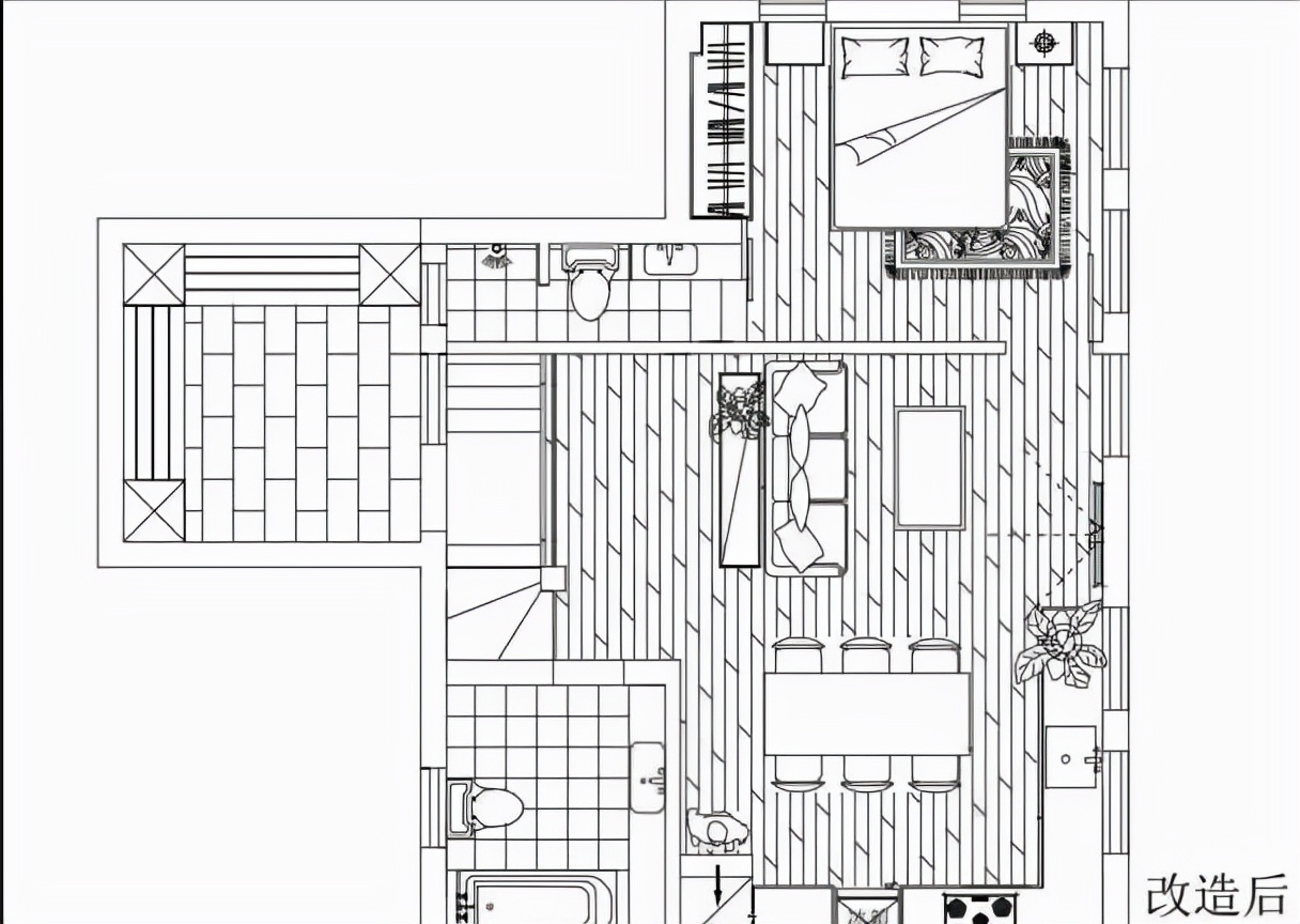
【户型图】
改造之前大部分的空间没有被合理地利用上 , 虽然房间面积大 , 但是很多都被浪费 。
在改造后重新规划了空间布局 , 优化了空间动线 , 在上下两层楼都进行了较大幅度的改造 , 重新把每一个空间都进行了规划 , 让空间功能性得到了最大程度的释放 。
【玄关】
设计重点:合理布局增设空间层次感
在改造以后玄关区域重新进行了东向改变 , 没有常规的设计鞋柜 , 而是设计了旋转阶梯 , 颇有园林的美景 。
楼梯上方就是整体空间 , 和玄关区采用了玻璃隔断 , 增加了通透性和美观性 。
【客厅】
设计重点:原木风家具更显清新自然
客厅的结构比较巧妙 , 上方吊顶是不规则形状 , 但是都没有被浪费 , 沙发上面的高吊灯被设计成了通风口 , 地板采用的是木地板 , 搭配的木茶几 , 木凳子让客厅更显自然 。
客厅大面积还是留白式设计 , 但是并不显得单调 , 搭配的蓝色沙发更显干净灵动 。 墙面上还搭配了橘黄色挂画 , 也起来的点缀的作用 。
【厨房】
设计重点:开放式格局更显空间宽敞
厨房是在客厅的左侧 , 开放式格局更显空间的宽敞明亮 , 同时利用上下楼梯间的空间设计了嵌入式的家具 , 既不会造成空间的浪费 , 也能增强空间的实用性 。
橱柜是L型走向 , 储物空间超大 , 而且完全不会造成拥挤 , 几个人一起操作也十分的宽敞 。 厨房有大面积的窗户 , 把自然光线引进空间 , 增加了明亮度 。
【餐厅】
设计重点:多功能空间
餐厅就在厨房旁边 , 没有被划分在独立空间里 , 方便上下取菜 。 长方形餐桌面积非常大 , 可以同时容易多人就餐 。
平时这里也可以是居家办公区域 , 宽敞的面积完全可以容纳一个团队在这里办公 。 而且餐厅的采光非常好 , 完全不会觉得压抑 。
特别声明:本站内容均来自网友提供或互联网,仅供参考,请勿用于商业和其他非法用途。如果侵犯了您的权益请与我们联系,我们将在24小时内删除。
