建房云图库

文章插图
山东枣庄二层新中式别墅
建筑面积:302㎡
占地面积:153㎡
建筑尺寸:15.8m×10.1m
建筑结构:砖混结构
效果图
今天这栋别墅为新中式风格,外立面采用两种材质,一层为青砖贴片,二层部分为白色真石漆 。屋顶为小青瓦,沿袭中国传统建筑精粹的同时,也添加了现代生活价值的精雕细刻 。

文章插图
山东
枣庄
一层与二层的退台设计,增强了居住者的私密性,并增加了空间的多变性,富有情趣 。

文章插图

文章插图
【2020枣庄北山宿舍 枣庄北山别墅风水】引入中式庭院生活理念,再现深藏中国人心中的最高生活境界 。包括中国人的文化气息、文化理念,缔造现代中式别墅 。院落空间回避了户与户干扰,增加了空间层次感,创造出宜人的环境 。

文章插图

文章插图
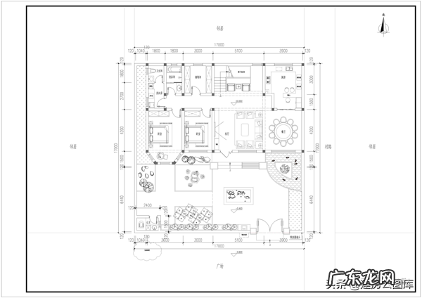
平面图
户型概况:
2层 / 5室 1厅 2卫 1厨 1储藏 1洗衣 1设备 1茶区 1书房 1活动室 2阳台

文章插图
一层平面图
本项目大门开在东南侧,巽位方向,室外卫生间做在院子西南角,符合中式风水布局 。入户为一个大客厅,客厅北侧是楼梯,楼梯下摆放一张八仙桌 。东侧为厨房餐厅,厨房为半开放式,而且做的非常大 。餐厅布置了一张十人圆桌 。西南为两间卧室,都朝阳 。西北角为公卫和洗浴间,储藏室 。

文章插图
二层平面图
二层共布置三间卧室,西南两间卧室和一层对应,北侧一间卧室 。西北角一间公卫,东侧为活动空间,布置了一个超大活动室和书房 。
- 100分怎么换算成四等级 四级分数换算表2020
- 奥迪q5最新价格及图片 2020奥迪q6
- 10月1日圆通快递停运吗 快递啥时候停运2020年
- 数学考研国家线 考研数学三国家线2020
- dnf女枪转职什么好 女枪转什么职业好2020
- 神仙道手游主角流攻略 神仙道攻略2020
- 2020年赣州市各区县GDP 赣州各区县GDP2020
- 2020最新背景图片大全 2020年的图片大全好看
- 2020猎场第二部最新消息 猎场
- 2020年哈尔滨最冷多少度 2020年哈尔滨冬天最低温度
特别声明:本站内容均来自网友提供或互联网,仅供参考,请勿用于商业和其他非法用途。如果侵犯了您的权益请与我们联系,我们将在24小时内删除。
