风水不是迷信,因为它是一门学问!
风水好了,开开心心,一帆风顺;风水不好,总是路途多舛,霉运连连 。怎样避开危机重重的户型?以下7种户型,坚决不买 。

文章插图
卫生间是家中的污秽之源,位于房子的正中,容易带来霉运 。

文章插图
这样的户型缺角严重,且寓意不吉,在买房的时候最好避开 。

文章插图
与手枪型类似,缺角严重,且寓意不吉,在买房的时候最好避开 。

文章插图
从风水上说,三角形不稳定,不易聚气,且在风水上尖角本身就具备形煞 。

文章插图
锯齿式户型无论是“内形”还是“外形”,都露出一些墙角,外面的墙角对他人不利,里面的墙角对自己不利 。另外,锯齿形户型往往有两三个方位都出现凹缺,风水学认为缺西北不利父,缺西南不利母,缺东、东北、北不利子,缺东南、南、西不利女 。

文章插图
【凸字户型风水图解 凹型户型风水破解】

文章插图
(本文图片来自于网络)
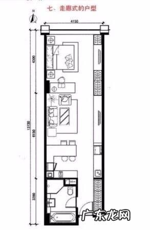
风水上,窄长的走廊可形成枪煞,为了心安,可以在走廊的总门两旁,摆放一对铜麒麟,头向大门方向,也可以可以化解这个枪煞 。其实最传统的风水是要根据使用的人(居住者)的八字来核算的,也就是说同样一种户型,虽然都是“凶”宅,但是会因居住的人的不同,“凶、吉”的效果也会不同 。而且万物相生相克,既有“凶宅”,自然就有化解的方法 。 世界上一些著名的建筑大师都称讲究风水,而家居风水在港台已经很普遍 。
风水学其实就是一门最朴素的环境学,讲的就是总体形势布局与整体环境 。而这些又和人分不开,所以风水其实也是一种“天人合一”思想的体现,比如古代有房子依山傍水风水好是吉利之宅一说,山水都是资源,有山就有地可耕,有水就可以灌溉,还可以养殖,家宅旺盛也就顺其自然了 。
这里点赞呢
- 盖房子看风水 盖房子需要看风水吗
- 毕业照左上角的同学风水怎么样
- 风水公鸡的作用 家里摆放公鸡居然还有这风水作用
- 风水宝地图片真实 风水宝地 风景图片
- 风水四大局水口图 风水开天门图片
- 泰安风水最好的地方 泰安万福珠宝
- 为什么风水地与生肖相冲 人和某个地方风水相冲
- 庭院鱼池形状与风水 院子里有鱼池风水
- 店铺风水不好怎么化解 店铺风水不好用什么来化解
- 深圳龙岗风水宝地 广东梅州风水宝地
特别声明:本站内容均来自网友提供或互联网,仅供参考,请勿用于商业和其他非法用途。如果侵犯了您的权益请与我们联系,我们将在24小时内删除。
