狭长型红色三层住宅:朴素简单的色调下,由天井引入阳光

文章图片

文章图片

文章图片

文章图片

文章图片

文章图片

文章图片

文章图片

文章图片

文章图片
城市住宅的设计往往要考虑该片区的统一体量 , 以免造成突兀的视觉观感 , 而城市中在过往的规划中 , 常常形成毗邻拥挤的现实情况 , 狭长型地块夹杂在左邻右舍之中 。 左右被夹击的地块 , 最突出的问题莫过于两侧的采光路径几乎被堵死 , 而狭长型的形状更是让地块中部位置的采光受到一定的限制 。 基于体量和高度的限制 , 狭长型地块的建筑往往显得高大又突兀 , 比例的失调让其显得稍显笨重 。 在这种情况下 , 常常需要借助设计的力量来扭转乾坤 。 今天小编就要给大家介绍这样一个狭长型地块上的三层红色住宅 , 看它是如何在朴素简单的色调下 , 通过天井引入阳光 , 实现自己的独特气质的 。
建筑外观
该项目位于墨西哥 , 临近道路 , 两侧均是已建成的邻居家住宅 , 这个住宅区的体量均在2-3层之间 。 建筑整体有三层体量 , 这符合该片区的整体体量感 , 而从道路看向建筑 , 建筑呈现脱离的两个部分 , 让上方的体块在竖向上保持了两层体量 , 犹如一个悬浮的方盒子 。 大门也被粉刷成同样的红色 , 让建筑保持了统一的质感 。
建筑外观
建筑细部
庭院
生活起居空间看向庭院
楼梯
二层休闲空间
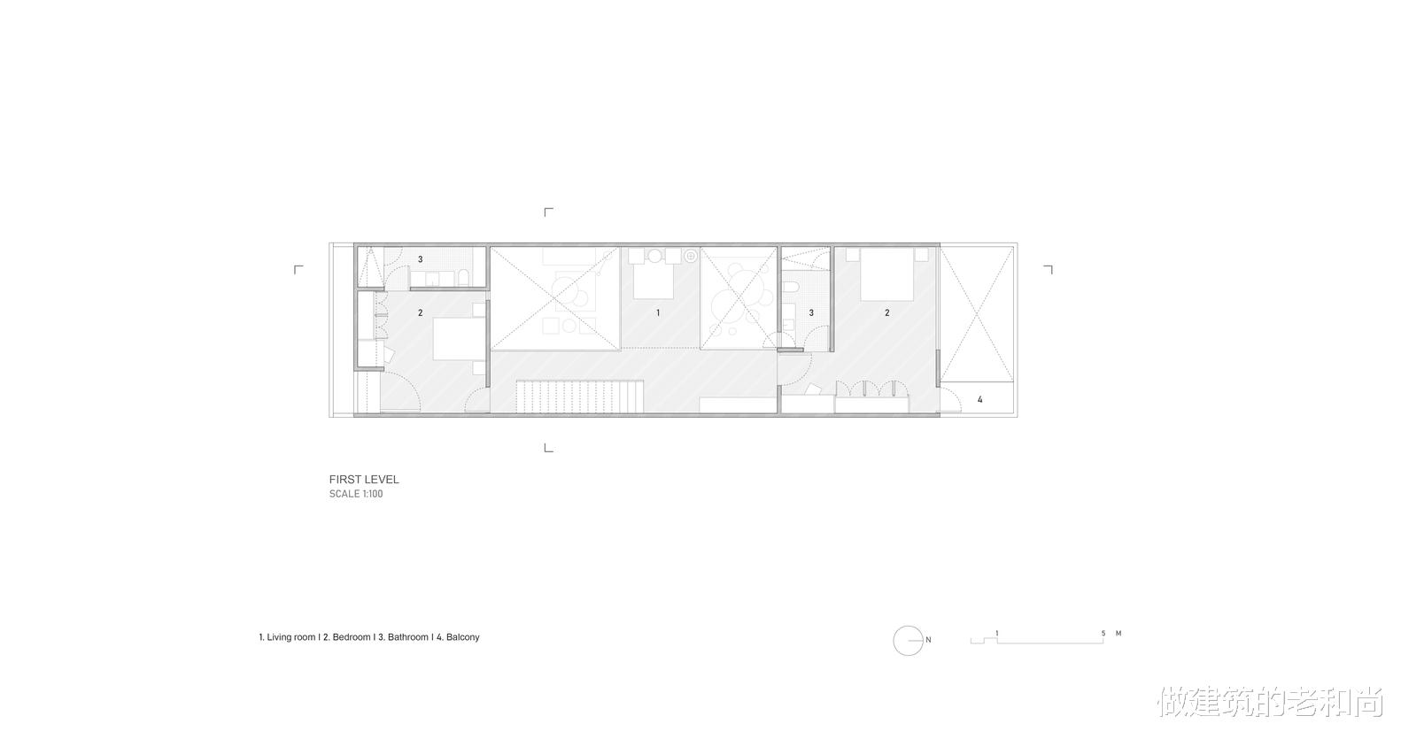
与道路连接的第一个空间 , 是一个停车场 , 一个过渡性区域将建筑内部与外部城市空间隔离开 。 这个区域与生活起居空间通过落地玻璃联系 , 让客厅和餐厅可以通过这里获取自然采光 。 首层空间没有过多的悬念 , 就是由承担家庭成员主要活动场所的生活起居空间组成 , 前部的餐厅和客厅、后部的厨房 , 两个区域通过建筑中间的一个庭院连产生联系 。 而餐厅的后部也是一个中庭 , 所有的空间均被庭院所包裹 , 让阳光可以充足的照射进建筑内部 , 与建筑外部立面的封闭感形成了强烈的对比关系 。 而作为连通上下层空间的楼梯 , 自然地就居于建筑的一侧 , 以直跑楼梯的形式存在 , 这样可以充分利用地块在纵向上的长度 , 也可以尽可能的保证采光面的面积 。
特别声明:本站内容均来自网友提供或互联网,仅供参考,请勿用于商业和其他非法用途。如果侵犯了您的权益请与我们联系,我们将在24小时内删除。
