98㎡三居室,现代简约风格,洗衣机藏进阳台柜,太会装了!

文章图片

文章图片

文章图片

文章图片

文章图片

文章图片

文章图片

文章图片

文章图片

文章图片

文章图片

文章图片

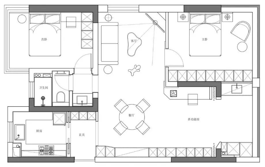
今天分享一套非常温柔舒服的98平现代简约风格新房装修案例 。 除了治愈系的布局装修 , 阳台功能区域的收纳设计更有生活气息 , 喜欢的朋友记得收藏借鉴 。
玄 关
餐 厅
厨 房
客 厅
书 房
主 卧
次 卧
阳 台
卫 生 间
齐家栗子提供更多装修资讯 , 喜欢的朋友记得收藏和关注哦!图片来源网络:侵权联系删除【98㎡三居室,现代简约风格,洗衣机藏进阳台柜,太会装了!】
特别声明:本站内容均来自网友提供或互联网,仅供参考,请勿用于商业和其他非法用途。如果侵犯了您的权益请与我们联系,我们将在24小时内删除。
