联排边套会比中间套更好一些,但在设计方案上,这套房子做成这样实在是比较可惜的 。没去过现场,以下建议仅供参考:

文章插图
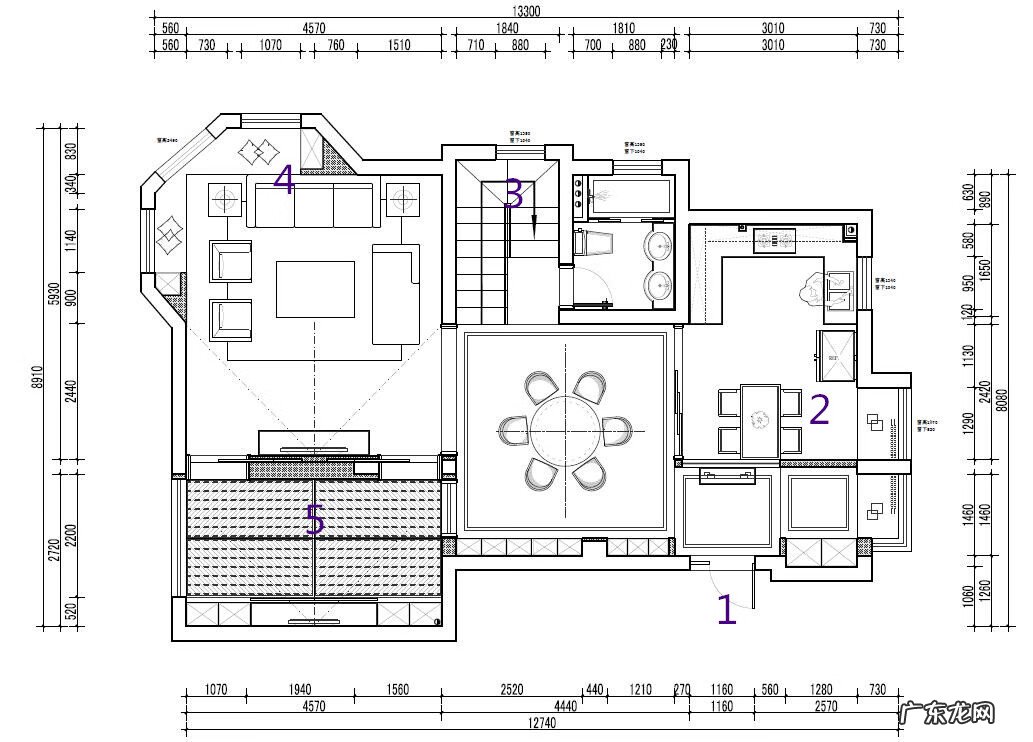
- 入户的设计现在只看到了室内,室外的话过渡区域最好也考虑一下,没有双门的话也至少做一下雨棚 。另外进门之后餐厅楼上正好是洗手间,这点如果风水上有忌讳的话请多注意;2.餐桌和冰箱这边的通道明显不够宽敞 。且整个餐厨基本没有现代化厨房设备的考虑 。且双门冰箱独立出来,一进厨房门就能看到,美观度也欠缺;3.楼梯下的空间可以考虑利用起来;4.沙发的布置有些太满了,特别如果靠地台太近的话,地台使用起来也不方便 。且主沙发一半靠背一半没有靠 。视觉上也不太好;5.这块区域有些为了做榻榻米而做塌塌米的感觉 。其实这里不太适合,一是榻榻米其实储物并不是很方便,特别常用物件,二是当休息用也不太舒服 。这个区域,其实做客房或其他功用更好 。特别年纪大的老人,如果需要一个卧室的话;
6.不太建议书桌这样布置,电脑会发光很厉害 。另主卧套房内缺少衣帽间;7.主卫内缺少窗,且没有别墅主卫的大气感和视觉感;7.主卫内缺少窗,且没有别墅主卫的大气感和视觉感;8.小房间隔的比较小可以做书房或茶室之类;
9.其实三楼的采光应该是比较好的吧?而且和露台相连,不太适合做影音,因为后期如果做声学处理的话成本会比较高;10.这个房间利用率估计也很低 。另外缺少洗晒功能 。
以下参考图片:
6.不太建议书桌这样布置,电脑会发光很厉害 。另主卧套房内缺少衣帽间;7.主卫内缺少窗,且没有别墅主卫的大气感和视觉感;7.主卫内缺少窗,且没有别墅主卫的大气感和视觉感;8.小房间隔的比较小可以做书房或茶室之类;

文章插图
9.其实三楼的采光应该是比较好的吧?而且和露台相连,不太适合做影音,因为后期如果做声学处理的话成本会比较高;10.这个房间利用率估计也很低 。另外缺少洗晒功能 。

文章插图
以下参考图片:

文章插图

文章插图
【联排别墅风水知识大全 联排风水怎么看】

文章插图
- 风水学坏掉的伞怎么处理 使用旧雨伞影响风水吗
- 比风水有用100倍的定律 风水12个社会定律
- 葫芦在风水上的作用 风水葫芦的作用
- 坟头长草好吗 风水坟头长杂草
- 租房风水上床要如何摆放呢
- 幼儿园交通安全资料内容 幼儿园交通安全知识教育
- 农村埋坟怎样看风水 坟墓风水是迷信还是科学
- 童子图的寓意 童子身风水图片
- 风铃在风水中的作用 铸铁风铃的风水作用
- 家人老生病是不是风水不好 家人生病风水
特别声明:本站内容均来自网友提供或互联网,仅供参考,请勿用于商业和其他非法用途。如果侵犯了您的权益请与我们联系,我们将在24小时内删除。
