50万以下的现代风格别墅,时尚宜居,年轻人也爱住

文章图片

文章图片

文章图片

文章图片

文章图片

文章图片

文章图片

今天给大家介绍两款现代风格别墅 , 预估造价都在50万以下 , 造型别致 , 来看看设计怎么样吧!
图纸编号:RY-04
墅层数: 二层
别墅风格:现代
占地面积:173㎡
建筑面积:363.96㎡
预估造价:40.0万
建筑结构:砖混结构
建筑占地:12m×14m
平 面 图
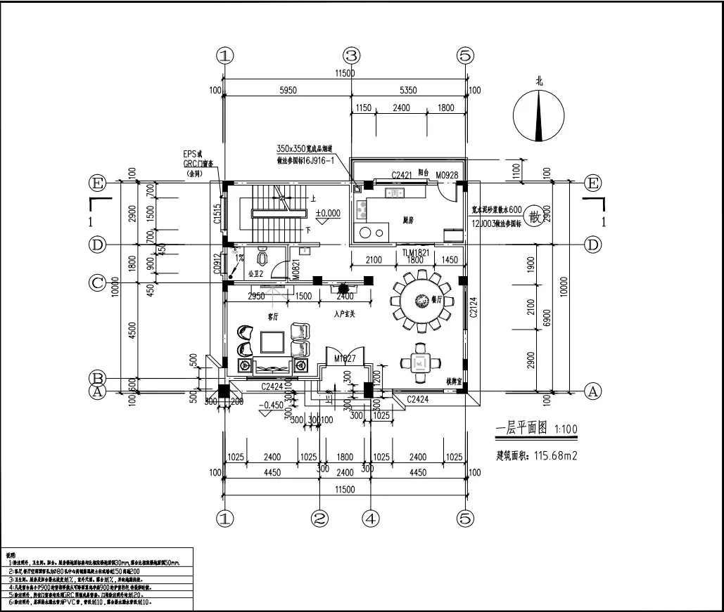
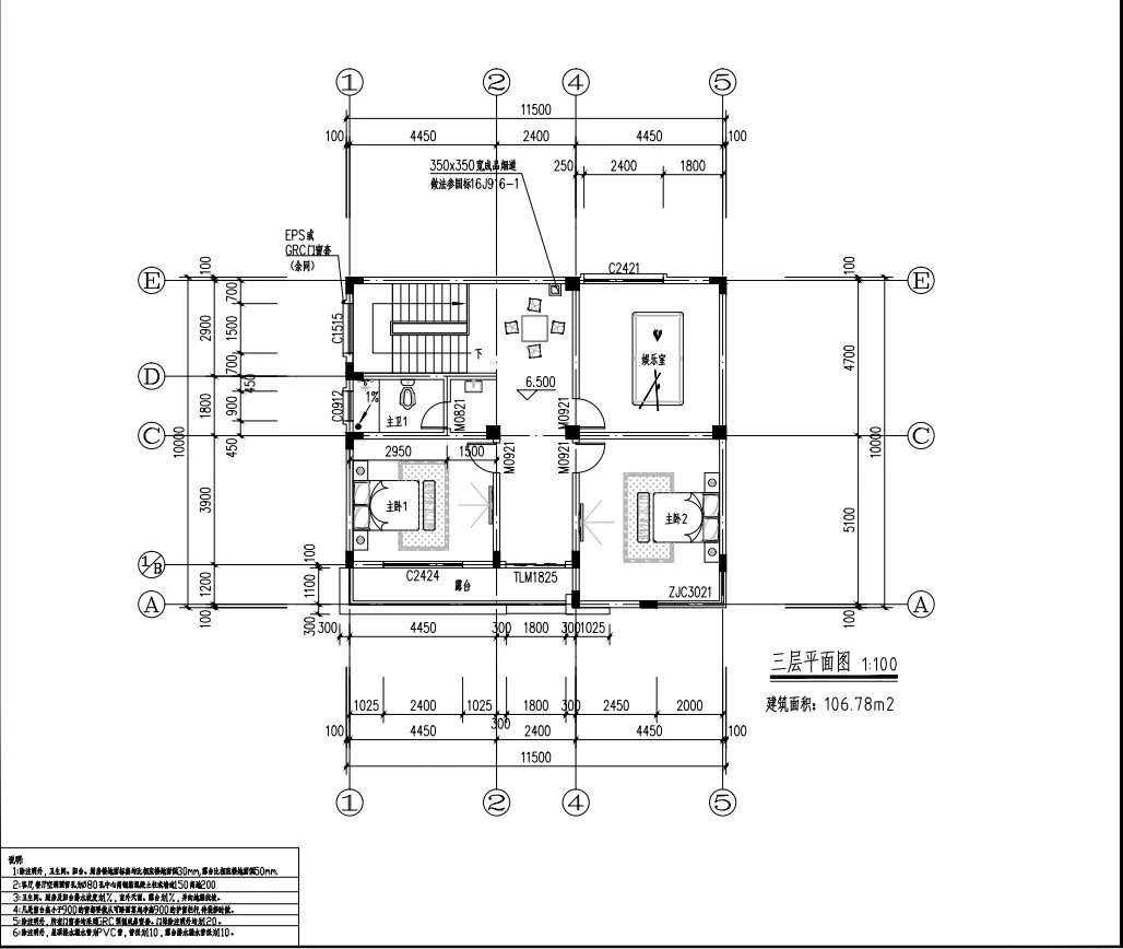
图纸编号:RY-05
【50万以下的现代风格别墅,时尚宜居,年轻人也爱住】
别墅层数: 三层
别墅风格: 现代
占地面积:115㎡
建筑面积:452.46㎡
预估造价:50.0万
建筑结构:框架结构
建筑占地:11.5m×10m
平 面 图
特别声明:本站内容均来自网友提供或互联网,仅供参考,请勿用于商业和其他非法用途。如果侵犯了您的权益请与我们联系,我们将在24小时内删除。
