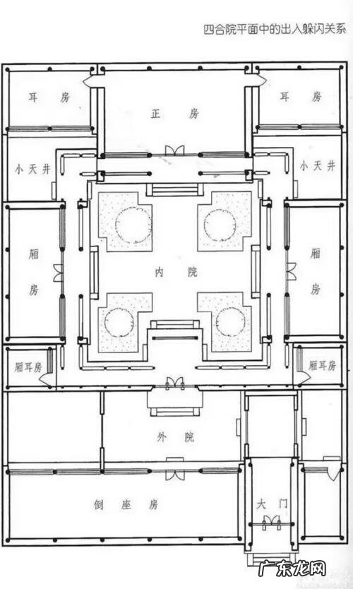
上一期我们讲了四合院的进院布局,这期我带大家了解四合院有哪些优点 。

文章插图
要问四合院有哪些优点?那可真是优点多多,举不胜举 。不但古代人愿意住四合院,实话讲,现代人更愿意住四合院,只不过是条件不允许罢了 。

文章插图
优点一:它是独门独院儿,是形成一体的独立风格,既优雅清静,又舒适享受 。不是别墅胜似别墅 。

文章插图
优点二:他的房屋朝向,无论是东厢房还是西厢房,冬有冬的温暖,夏有夏的凉爽 。一年四季可以随着时节的变化而调换着屋子居住的朝向 。
【一进四合院风水讲究 四合院风水好吗?】

文章插图
优点三:合院住宅中的庭院四周闭合而露天,可以营造出内部良好的小气候,减少不良外在气候的影响 。夏天可以有效地遮荫纳凉,冬天可以很好地采光,保暖,抵御风沙 。露天通透的庭院即是入风口,也是出风口,通过自然的风压得到流畅的通风,保证健康清新的空气质量 。

文章插图
优点四:可以在合院中种植花木,摆设鱼缸,也可以作为儿童玩耍、老人打太极拳、洗晒衣服、户外烧烤等等,是欣赏鸟语花香的极佳户外场所,很适合一个大家庭居住 。

文章插图
最重要的一个优点来了:四合院属于风水中最好的建筑,是合"四灵兽"风水法则,也合"天圆地方"的天、地、人合一的道家思想 。
需要设计四合院的网友留下面积,我来帮你设计!

文章插图
点赞加关注,留言你的看法,下一期带你了解四合院的缺点!
- 一年中最凶的日子 风水十大凶局
- 姓陈的风水大师 风水师陈名
- 重庆恒大山水城风水
- 风水中兔子代表什么 木兔子风水
- 住酒店风水讲究 住宾馆的风水
- 两梯三户中间户型风水 两梯三户好吗?
- 有名的风水画
- 护甲怎么叠 风水上龙龟双叠什么意思
- 中国地理风水图 中国地图风水详解
- 风水的形峦和理气是什么意思 什么是形峦风水
特别声明:本站内容均来自网友提供或互联网,仅供参考,请勿用于商业和其他非法用途。如果侵犯了您的权益请与我们联系,我们将在24小时内删除。
