4月27日,即墨区自然资源局对青岛蓝谷佳业投资发展有限公司新建墨上花开项目B地块规划方案进行社会公示 。

文章插图
【建设单位】青岛蓝谷佳业投资发展有限公司
【建设项目】墨上花开项目B地块
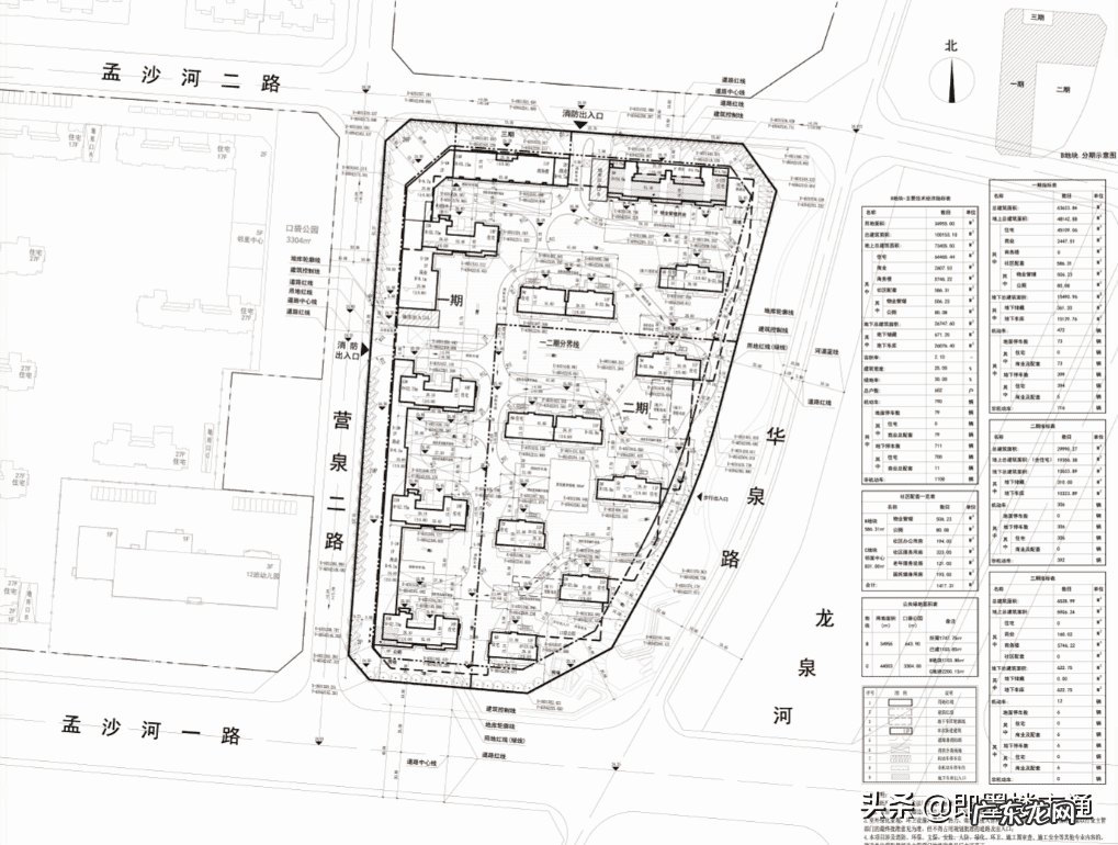
【项目位置】华泉路以西、营泉二路以东、孟沙河一路以北、孟沙河二路以南
【设计单位】青岛腾远设计事务所有限公司
【设计资质】建筑甲级
B地块用地面积:34955㎡,总建筑面积:100513.10㎡,其中,地上建筑面积:73405.5㎡,地下建筑面积:26747.6㎡,容积率:2.10,建筑密度:25%,绿地率:30%,停车位:机动车790个(地上79个、地下711个)、非机动车1108个
根据规划,B地块项目拟建设13栋11至18F小高层住宅楼和1栋11F商务楼,分三期开发,规划总户数602户 。
总规划平面图▼

文章插图
B地块鸟瞰图▼
【即墨墨上花开在什么位置 即墨墨上花开位置怎么样】

文章插图
沿营泉二路效果图▼

文章插图
住宅立面效果图▼

文章插图
- 晚上睡前喝牛奶会不会胖 天天睡前喝牛奶会胖吗
- 天猫直播上链接步骤是什么
- 山姆会员可以在手机上办吗
- 中国历史上著名的谋士陈宫:先叛曹操
- 厨房地垫弄上油怎么清洗
- 如何在淘宝上开网店步骤 如何在淘宝上开网店
- 晚上暖心的话语朋友圈 晚上暖心的话语
- 淘宝大盘数据 淘宝如何看行业大盘
- 白衣服上沾了番茄酱用什么能洗掉
- 暖宝宝贴鞋子里该哪面朝上
特别声明:本站内容均来自网友提供或互联网,仅供参考,请勿用于商业和其他非法用途。如果侵犯了您的权益请与我们联系,我们将在24小时内删除。
