
文章图片

文章图片

文章图片

文章图片

文章图片

文章图片

文章图片

文章图片
都说在小户型设计中 , 有着无限种可能性 , 可在真正的设计中 , 还是有很大难度的 。 因为在空间面积有限的情况下 , 如何来平衡空间的功能性 , 以及合理地做取舍 , 都是要进行反复推敲的 , 从而确保完工后符合居住者的需求 。
本期给大家带来的就是一套小户型设计案例 , 虽说面积只有38㎡ , 但装修完之后却立马圈粉无数 。 因为不管是巧妙的空间布局 , 还是空间颜值表现 , 又或是细节处理 , 都给人带来了很大的惊喜 , 也非常值得同户型的朋友来参考 。
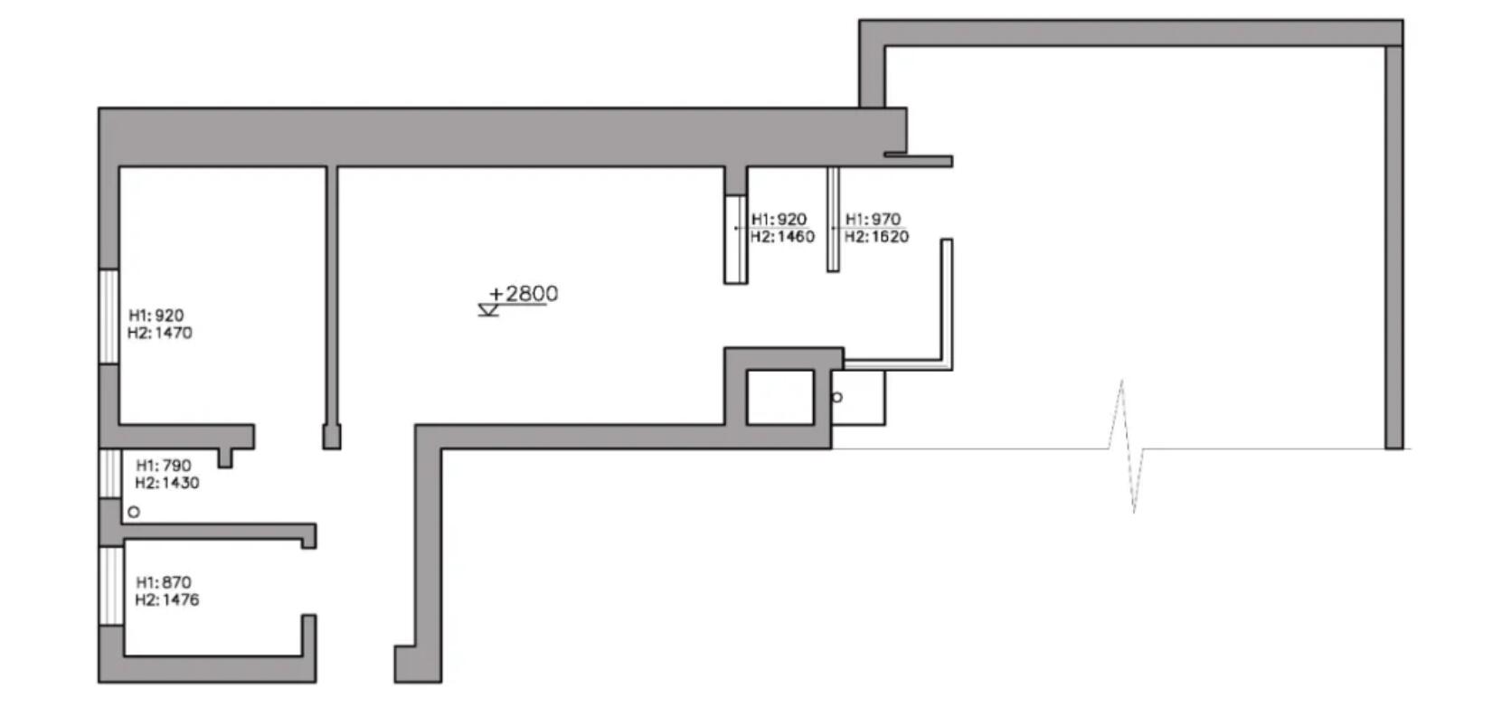
平面结构图
本案是一套位于北京的学区房 , 一室一厅的格局 , 由于处于一楼 , 所以阳台外面还有一个院子 。 原户型结构很不理想 , 因为在户型面积十分有限的情况下 , 不仅过道浪费了很多面积 , 阳台也显得比较鸡肋 。 而对于新家的需求 , 屋主则希望实现两居室的功能 , 并且在功能性上 , 至少要满足一家三口6年的居住需求 。
平面方案图
结合现有的空间结构 , 布局改造如下
1、扩大厨房门洞 , 并采用开放式设计 , 最大化改善动线体验 。
2、调整主卧门洞位置 , 为卫生间延伸出一块台盆区 , 缓解空间的紧凑性 。
3、客厅一分为二 , 延伸出一间儿童房 , 满足屋主两居室的需求 。
4、阳台拆除多余的墙体 , 并与客厅形成一体化 , 丰富空间的功能性 。
玄关
过道看向入户视角 , 玄关柜采用拆半墙的方式来设计 , 并以曲线的方式来处理墙体与玄关柜之间的拼接缝 , 立马就让入户有了曲径通幽般的动线体验 。 尤其是当地板采用人字形来铺贴后 , 更是缓解了空间的紧凑感 。 当然 , 最重要的还是解决了入户的收纳需求 。
入户后第一视角 , 动线相当流畅 。 而当主卧门洞位置重新调整之后 , 则巧妙地为卫生间延伸出了一块台盆区 。 这样不仅让卫生间实现了干湿分离的结构 , 也提高了生活使用的便捷性 。
卫生间
【她38㎡的新家火了,要颜有颜,要收纳有收纳,简直圈粉无数】台盆柜悬挂安装 , 既在视觉上做到了轻盈 , 又方便了卫生打理 。 而为了减轻空间的复杂性 , 干区墙面放弃瓷砖铺贴 , 并刷上防水乳胶漆 , 也解决了受潮问题 。
特别声明:本站内容均来自网友提供或互联网,仅供参考,请勿用于商业和其他非法用途。如果侵犯了您的权益请与我们联系,我们将在24小时内删除。
