
文章插图
项目名称:湖南赵家新中式别墅
占地面积:314.54㎡
建筑面积:862.46㎡
建筑尺寸:24.9m×13.5m
图纸编号:973
建筑结构:框架结构
户型概况:12室4厅14卫2厨1堂屋1储物9衣帽1书房1茶室
土建造价:160万元(不包含室内装修费用)
项目概况

文章插图
总平面示意图
项目位于湖南 。
图纸设计

文章插图
【前后门位置风水 前后门风水】一层平面图
入户位置玄关面积较大,通过玄关可前往餐厅和堂屋,客厅与堂屋相对,南北通透的格局让空间更加明亮、开阔 。卧室位于南侧,配有衣帽间和独立卫生间 。

文章插图
二层平面图
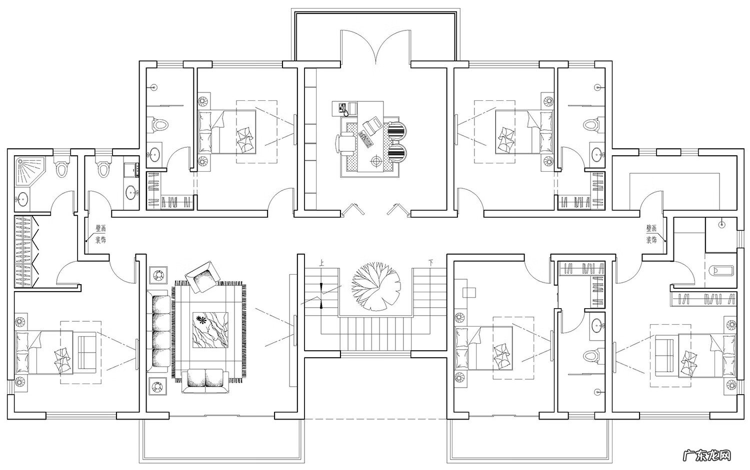
二层共有五间卧室,均为套房 。楼梯间中心布置景观,提升交通空间使用感 。书房配有室外阳台,工作、学习之余可以眺望远方 。

文章插图
三层平面图
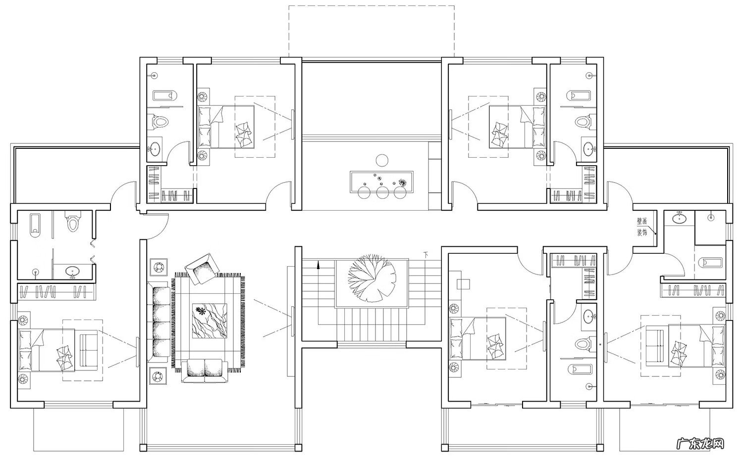
三层仍以起居功能为主,卧室布局上与二层基本一致 。书房位置替换为茶室,相对静谧的环境搭配露台让品茶的环境更有意境 。
- PC端和无线端直通车展示位置有哪些
- 婚前男方提分手彩礼可以要回吗
- 课前励志班级口号霸气押韵 课前励志班级口号
- 为什么别人销量少宝贝却排名在前
- 淘宝开店前市场分析怎么做
- 伤感的签名让人想哭八个字 伤感的签名让人想哭
- 在离婚前一方把财产转移给了别人怎么调查 一方提出离婚
- 直播平台和个人持证上岗是铁律
- 为什么说不怕门前堆上堆
- 京东O2O战略 京东加速B2B布局
特别声明:本站内容均来自网友提供或互联网,仅供参考,请勿用于商业和其他非法用途。如果侵犯了您的权益请与我们联系,我们将在24小时内删除。
