大家好,我是房大爷,本周我们继续点评户型风水 。
由于最近较忙,手头压得户型图也比较多,但是大家的消息我还是会一一回复的,下面四个户型也是我精心挑选出来的四个比较有代表性的,供大家品评 。
闲言少叙,马上进入正题
第一套

文章插图
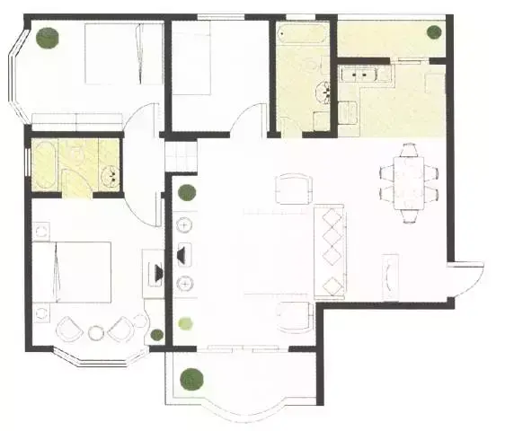
这户人家的房子,客厅疏朗,横平竖直,格局方正大气,但是从房大爷的角度来看,还存在几个问题 。
1、 北卫生间正对客厅沙发,极为不雅,在格局上亦属不洁 。
2、 主卧室中套有卫生间,马桶通过卫生间的门正对卧床,这种格局在风水上容易造成居住者腰椎方面的疾病,是一定要避免的格局 。
第二套

文章插图
好处我就不说了,单单指出几个不足吧!
1、 开门见卫生间,属倒宅格局 。宅门是纳气之门户,而卫生间在风水学中式浊气汇聚之地,位于大门进口,浊气随人流入宅,必然影响宅运 。
2、 卫生间与厨房门对门 。厨房为家人煮食质地,清浊相对,是为不洁,久而久之影响家人健康 。
3、 主卧室内的卫生间,马桶正对床,影响睡眠者健康 。
第三套

文章插图
此案例的布局基本上符合装修风水学的原理,入户先见客厅,厨厕分明,格局方正 。
但是,还是有以下问题 。
1、 没有正对卫生间的门,未使浊气扩散 。
2、 主卧室的卫生间避开了卧床 。
3、 宅门稍微对准了掩盖,可以做一个玄关遮挡下 。
第四套

文章插图
此案例的户型和布局基本上是很不错的,但是有几点我们需要注意:
1、 主卧室的床要向西宜动,不要靠近窗下 。
2、 主卧室尽量不要放椅子 。一是看上去像宾馆,二是根据风水学,卧室放椅子容易造成夫妻吵架,影响家庭和睦 。
以上四套房子的户主也都已经和我取得了联系,具体怎么变,还有哪些问题,房大爷会在近期通过私信的方式发送给这四位朋友 。
其他朋友如果对自己的户型感兴趣,也想让房大爷帮忙看看风水,尽管说,还是那句话,知无不言言无不尽 。
【倒宅留大门哪个方向好 倒宅怎么盖房风水好】买房,买的贵不如买的好,想买好房,找房大爷 。
- 扫把眉男人戴什么配饰可以留住钱财
- 父亲把全部遗产都给小女儿 父亲将遗产都留给儿子
- 贪污罪收到拘留通知最多在拘留所待多久
- 茶室风水布局 做生意茶几对着进门大门好吗
- 电视墙旁边有门风水好不好 电视墙对大门的风水好不好
- 影面墙离大门多远最合适
- 我真是风水大师 进门风水图片
- 房子化粪池留在什么位置风水好 房子前有化粪池影响风水吗
- 容留他人吸毒可以适用缓刑吗 容留他人吸毒有缓刑吗
- 监狱大门警示语 监狱监舍楼标语
特别声明:本站内容均来自网友提供或互联网,仅供参考,请勿用于商业和其他非法用途。如果侵犯了您的权益请与我们联系,我们将在24小时内删除。
